川崎市宮前区南野川2丁目 新築戸建 全5棟 神奈川県川崎市宮前区南野川2丁目|4,680万円の新築一戸建て|エムイーPLUS横浜
| 価格 | 4,680万円 ![]() |
||||
|---|---|---|---|---|---|
| 所在地 | 神奈川県川崎市宮前区南野川2丁目
この地域周辺の物件を見る |
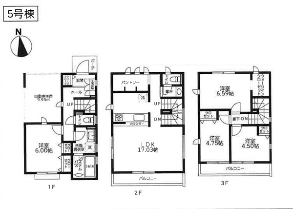
土地面積 | 64.98m² (19.66坪) | 建物面積 | 111.53u |
| 築年月 | 2026年5月築 | 間取り | 4LDK (-) | ||
| 交通 |
東急田園都市線 鷺沼 バス15分 和田八幡宮下 停歩1分
|
||||
| 特徴 |
|
|---|---|
| セールスコメント | |
| 採光面 | - | 構造/階数 | 木造/地上3階建 |
|---|---|---|---|
| 建ぺい率 | 6(%) | 容積率 | 200(%) |
| 駐車場 | 有 | 現況/引渡し | -/2026年5月下旬 |
| 土地権利 | 所有権 | 私道負担面積 | - |
| 接道状況 | 接道: 北 公道 道路幅: 7.2m 接道: 南 公道 道路幅: 2.7m |
用途地域 |
第一種住居地域
|
| セットバック | なし | 法令上の制限 | 第3種高度地区 高さ20m 宅地造成および特定盛土等規制法 洪水ハザード浸水深:0.5m-3.0mに該当 車庫:車種による |
| 地目 | 宅地 | 地勢 | |
| 建築確認番号 | 第25UDI1K建01093号 | 都市計画 | 市街化区域 |
| 取引態様 | 仲介 | ||
| 情報更新日 | 2026年04月23日 | 次回更新日 | 2026年05月07日 |
| 小学校区 | 川崎市立南野川小学校 (神奈川県川崎市) この学区の他の物件を見る |
中学校区 | 野川中学校 (神奈川県川崎市) この学区の他の物件を見る |
|---|
| 価格 | 万円 | ||
|---|---|---|---|
| 年利率 | % |
||
| ボーナス払い | 返済年数 | ||
| 頭金 | 直接入力する | 万円 | |

毎月のご返済額 |
ボーナス(×年2回) |
物件価格4,680万円 |
![]() |
![]() |
川崎市宮前区南野川2丁目
4480万円〜4680万円 |
-