茅ヶ崎市芹沢第1 新築戸建 全4棟 神奈川県茅ヶ崎市芹沢 |3,980万円の新築一戸建て|エムイーPLUS横浜
| 価格 | 3,980万円 ![]() |
||||
|---|---|---|---|---|---|
| 所在地 | 神奈川県茅ヶ崎市芹沢
この地域周辺の物件を見る |
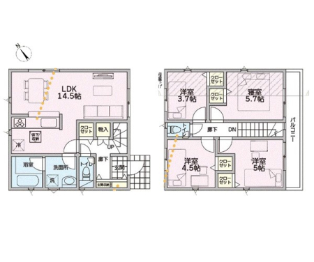
土地面積 | 178.28m² (53.93坪) | 建物面積 | 110.13u |
| 築年月 | 2026年7月築 | 間取り | 4LDK (-) | ||
| 交通 |
JR東海道本線 バス23分 芹沢入口 停歩15分
小田急江ノ島線 湘南台 バス19分 芹沢入口 停歩15分 |
||||
| 特徴 |
|
|---|---|
| セールスコメント | 都市計画:市街化調整区域(建築許可:開発許可等による分譲地内) |
| 採光面 | - | 構造/階数 | 木造/地上2階建 |
|---|---|---|---|
| 建ぺい率 | 50(%) | 容積率 | 100(%) |
| 駐車場 | 有 | 現況/引渡し | -/2026年7月下旬 |
| 土地権利 | 所有権 | 私道負担面積 | - |
| 接道状況 | 接道: 東南 公道 道路幅: 5.9m | 用途地域 |
指定なし
|
| セットバック | なし | 法令上の制限 | - |
| 地目 | 宅地 | 地勢 | |
| 建築確認番号 | 第トラストT25-0385号 | 都市計画 | 市街化調整区域 |
| 取引態様 | 仲介 | ||
| 情報更新日 | 2026年05月25日 | 次回更新日 | 2026年06月08日 |
| 小学校区 | 茅ヶ崎市立小出小学校 (神奈川県茅ヶ崎市) この学区の他の物件を見る |
中学校区 | 北陽中学校 (神奈川県茅ヶ崎市) この学区の他の物件を見る |
|---|
| 価格 | 万円 | ||
|---|---|---|---|
| 年利率 | % |
||
| ボーナス払い | 返済年数 | ||
| 頭金 | 直接入力する | 万円 | |

毎月のご返済額 |
ボーナス(×年2回) |
物件価格3,980万円 |
![]() |
![]() |
茅ヶ崎市芹沢
3980万円〜4380万円 |
-