横須賀市岩戸2丁目 新築戸建 全1棟 神奈川県横須賀市岩戸2丁目|3,998万円の新築一戸建て|エムイーPLUS横浜

エムイーPLUS横浜

045-489-5600

営業時間:9:00~ 定休日:毎週水曜

TOPページ >
物件検索 >
新築一戸建て
>
横須賀市
>
京急久里浜線
>
横須賀市岩戸2丁目 新築戸建 全1棟

新築一戸建て

横須賀市岩戸2丁目 新築戸建 全1棟

お気に入り
価格 3,998万円値下がり ローンシミュレーション
所在地 神奈川県横須賀市岩戸2丁目
この地域周辺の物件を見る
土地面積 159.72m² (48.32坪) 建物面積 98.53u
築年月 2026年6月築 間取り 4LDK (-)
交通
京急久里浜線 北久里浜 久里浜線YRP野比駅 車分
ここがおすすめ

-


  • 現地外観写真 外観■新しい暮らしが始まる場所で、家族の絆を深める
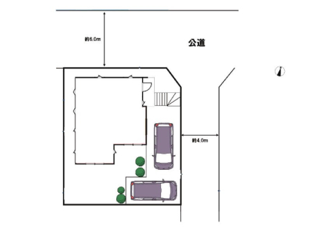
  •  間取り
  • 現地外観写真 外観■土地売りも可能です(建築条件なし、販売価格2098万円)
  • 現地外観写真 外観■閑静な住宅街で落ち着いた暮らし
  •  区画図
  • 周辺環境 駅 2700m 京急久里浜線「北久里浜」駅
  • 周辺環境 小学校 1120m 横須賀市立岩戸小学校
  • 周辺環境 中学校 1200m 横須賀市立岩戸中学校
  • 周辺環境 幼稚園・保育園 2200m 野比幼稚園
  • 周辺環境 病院 2700m 北久里浜医院
  • 周辺環境 スーパー 600m エイビイ 佐原店

お問い合わせ、資料請求、見学のお申し込みはこちらから

電話をかける(携帯・PHS可)
045-489-5600
「ホームページを見た」とお伝え下さい。

お問い合わせ番号をお伝えください
RHS-980946180

内見予約
お問合せ

セールスポイント

特徴
  • フローリング
  • システムキッチン
  • 室内洗濯機置場
  • バルコニー
  • バイク置き場
  • 都市ガス
  • カースペース2台以上
  • プライスダウン
セールスコメント  


物件概要

採光面 - 構造/階数 木造/地上2階建
建ぺい率 50(%) 容積率 80(%)
駐車場 現況/引渡し -/2026年6月下旬
土地権利 所有権 私道負担面積 -

接道状況 接道: 北 公道 道路幅: 6m
接道: 東 公道 道路幅: 4m
用途地域
第一種低層住居専用地域
セットバック なし 法令上の制限 角地緩和 完成予定:契約後6カ月
地目 宅地 地勢
建築確認番号 第25KAK建確03572号 都市計画 市街化区域
取引態様 仲介
情報更新日 2026年05月25日 次回更新日 2026年06月08日
※各種情報と差異がある場合は現況優先となります

学区情報

小学校区 横須賀市立岩戸小学校
(神奈川県横須賀市)
この学区の他の物件を見る
中学校区 岩戸中学校
(神奈川県横須賀市)
この学区の他の物件を見る
※物件情報の学区情報について
当サイト物件情報に記載されております通学区域(学区)情報は、国土数値情報ダウンロードサービスが提供する小学校区データ【2021年度】及び中学校区データ【2021年度】を元に加工したものですので、記載情報が現在の学区域と異なる場合がございます。
国土数値情報ダウンロードサービスのWEBサイト上で記述通り、データは必ずしも正確とは言えません。また、通学区域(学区)は毎年見直しの対象となりますので、そちらを踏まえ学区情報は参考としてご活用下さい。

お問い合わせ、資料請求、見学のお申し込みはこちらから

電話をかける(携帯・PHS可)
045-489-5600
「ホームページを見た」とお伝え下さい。

お問い合わせ番号をお伝えください
RHS-980946180

内見予約
お問合せ

この物件でローンシミュレーションする

価格 万円
年利率
ボーナス払い 返済年数
頭金 直接入力する 万円

毎月のご返済額

ボーナス(×年2回)

物件価格

3,998万円
※返済金額はあくまでも目安です。
  • こちらの物件を見たお客様はこんな物件もチェックしています。
  • お気に入り物件

電話をかける(携帯・PHS可)
045-489-5600
「ホームページを見た」とお伝え下さい。

お問い合わせ番号をお伝えください
RHS-980946180

内見予約
お問合せ

お問い合わせ

  1. 1
    内容入力
  2. 2
    内容確認
  3. 3
    完了
お問合せ内容必須
【備考欄】
詳細な見学ご希望時間、ご質問、ご希望条件などがございましたらお聞かせ下さい。
(2000文字以内)
お名前必須
メールアドレス必須
※ご記入いただいたメールアドレス宛てに、お問合せ内容の確認メールをお送りいたします。
※Yahoo!メールなどのフリーメールをご利用の場合、迷惑メールフォルダに入る場合があります。
 迷惑メールのフォルダ・設定等をご確認下さい。
電話番号必須
FAX(任意)
※ご入力いただいたお客さまの個人情報は、「個人情報の取扱いについて」に基づき適正に取り扱います。必ずお読みになり、同意の上お問い合わせください。

お気軽にお問い合わせください

045-489-5600
物件番号 RHS-980946180
※「ホームページを見た」
とお伝え下さい。