横浜市戸塚区平戸3丁目 新築戸建 全1棟 神奈川県横浜市戸塚区平戸3丁目|5,280万円の新築一戸建て|エムイーPLUS横浜

エムイーPLUS横浜

045-489-5600

営業時間:9:00~ 定休日:毎週水曜

TOPページ >
物件検索 >
新築一戸建て
>
横浜市戸塚区
>
JR横須賀線
>
横浜市戸塚区平戸3丁目 新築戸建 全1棟

新築一戸建て

横浜市戸塚区平戸3丁目 新築戸建 全1棟

お気に入り
価格 5,280万円値下がり ローンシミュレーション
所在地 神奈川県横浜市戸塚区平戸3丁目
この地域周辺の物件を見る
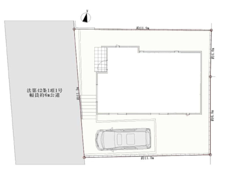
土地面積 127.5m² (38.57坪) 建物面積 99.37u
築年月 2026年3月築 間取り 3LDK (-)
交通
JR横須賀線 東戸塚 徒歩25分
JR横須賀線 東戸塚 バス10分 境木中学校前 停歩4分
ここがおすすめ

-


  • 現地外観写真 外観■暮らしを豊かにする充実した仕様設備で快適に
  •  間取り
  • 現地外観写真 外観■新しい暮らしが始まる場所で、家族の絆を深める
  • 現地外観写真 外観■家族みんなが笑顔で過ごせる、安心感のある住まい
  • 現地外観写真 外観■家族の未来を優しく包み込む新しい住まい
  • 現地外観写真 外観■新しい住まい、街の新しい風景
  •  外観■自宅にカースペースがあると助かります
  • 玄関 外観■ 心地よい暮らしへとつながる、温かい玄関
  • その他 外観■庭付き住宅はガーデニングや家族のイベントなど多様な使用用途で活用できます
  •  区画図
  • 玄関 内装■ 家族やゲストをやさしく迎える、心地よい空間
  • トイレ 内装■毎日使う場所だからこそ、清潔感溢れる空間
  • 洗面台・洗面所 内装■清潔感があり、気持ちよく使えます
  • 浴室 内装■一日の疲れを癒す、心落ち着く空間です
  • キッチン 内装■美味しい時間が生まれる、笑顔あふれるキッチン
  • キッチン 内装■家族とつながる、コミュニケーションの場
  • キッチン 内装■使いやすさとデザインが融合した、快適なキッチン
  • リビング 内装■くつろぎもおもてなしも叶える柔軟なリビング※家具はCGです
  • リビング 内装■リビングイン階段採用で、ご家族のコミュニケーションも増えますね
  • その他内観 内装■光と風を感じる、リラックスできる空間
  • リビング 内装■居心地のいい、理想のリビング
  • その他内観 内装■自分だけのスペース どんなお部屋にするかとっても楽しみですね
  • 子供部屋 内装■プライベート空間として静かで落ち着いた環境を提供してくれます
  • 寝室 内装■家具をうまく配置すれば広々とした空間を使い動きやすく、リラックスした時間が過ごせます
  • その他内観 内装■落ち着いた雰囲気のお部屋で心が安らぐ空間
  • バルコニー 内装■ 空を眺めながら、ほっと一息つける特別な空間
  • その他 内装■WIC付きで衣類も荷物もまとめて収納
  • その他内観 内装■シンプルで使いやすい空間がスッキリ感じられます
  • その他内観 内装■清潔感あふれるお部屋で毎日を快適に過ごせます
  • その他内観 設備■鍵を取り出さずに便利に操作できて快適

お問い合わせ、資料請求、見学のお申し込みはこちらから

電話をかける(携帯・PHS可)
045-489-5600
「ホームページを見た」とお伝え下さい。

お問い合わせ番号をお伝えください
RHS-980945760

内見予約
お問合せ

セールスポイント

特徴
  • フローリング
  • システムキッチン
  • Wクローゼット
  • バルコニー
  • 都市ガス
  • プライスダウン
セールスコメント  


物件概要

採光面 - 構造/階数 木造/地上2階建
建ぺい率 50(%) 容積率 80(%)
駐車場 現況/引渡し 空家/即時
土地権利 所有権 私道負担面積 -

接道状況 接道: 西 公道 道路幅: 6m 用途地域
第一種低層住居専用地域
セットバック なし 法令上の制限 第一種高度地区 22条区域 高さ10メートル以下 敷地面積125平米以上 日影規制 宅地造成工事規制区域
地目 宅地 地勢
建築確認番号 第2025SBC-確00936Y号 都市計画 市街化区域
取引態様 仲介
情報更新日 2026年05月07日 次回更新日 2026年05月21日
※各種情報と差異がある場合は現況優先となります

学区情報

小学校区 横浜市立境木小学校
(神奈川県横浜市)
この学区の他の物件を見る
中学校区 境木中学校
(神奈川県横浜市)
この学区の他の物件を見る
※物件情報の学区情報について
当サイト物件情報に記載されております通学区域(学区)情報は、国土数値情報ダウンロードサービスが提供する小学校区データ【2021年度】及び中学校区データ【2021年度】を元に加工したものですので、記載情報が現在の学区域と異なる場合がございます。
国土数値情報ダウンロードサービスのWEBサイト上で記述通り、データは必ずしも正確とは言えません。また、通学区域(学区)は毎年見直しの対象となりますので、そちらを踏まえ学区情報は参考としてご活用下さい。

お問い合わせ、資料請求、見学のお申し込みはこちらから

電話をかける(携帯・PHS可)
045-489-5600
「ホームページを見た」とお伝え下さい。

お問い合わせ番号をお伝えください
RHS-980945760

内見予約
お問合せ

この物件でローンシミュレーションする

価格 万円
年利率
ボーナス払い 返済年数
頭金 直接入力する 万円

毎月のご返済額

ボーナス(×年2回)

物件価格

5,280万円
※返済金額はあくまでも目安です。
  • こちらの物件を見たお客様はこんな物件もチェックしています。
  • お気に入り物件

電話をかける(携帯・PHS可)
045-489-5600
「ホームページを見た」とお伝え下さい。

お問い合わせ番号をお伝えください
RHS-980945760

内見予約
お問合せ

お問い合わせ

  1. 1
    内容入力
  2. 2
    内容確認
  3. 3
    完了
お問合せ内容必須
【備考欄】
詳細な見学ご希望時間、ご質問、ご希望条件などがございましたらお聞かせ下さい。
(2000文字以内)
お名前必須
メールアドレス必須
※ご記入いただいたメールアドレス宛てに、お問合せ内容の確認メールをお送りいたします。
※Yahoo!メールなどのフリーメールをご利用の場合、迷惑メールフォルダに入る場合があります。
 迷惑メールのフォルダ・設定等をご確認下さい。
電話番号必須
FAX(任意)
※ご入力いただいたお客さまの個人情報は、「個人情報の取扱いについて」に基づき適正に取り扱います。必ずお読みになり、同意の上お問い合わせください。

お気軽にお問い合わせください

045-489-5600
物件番号 RHS-980945760
※「ホームページを見た」
とお伝え下さい。