川崎市川崎区田町2丁目 新築戸建 全1棟 神奈川県川崎市川崎区田町2丁目|5,230万円の新築一戸建て|エムイーPLUS横浜
| 価格 | 5,230万円 ![]() |
||||
|---|---|---|---|---|---|
| 所在地 | 神奈川県川崎市川崎区田町2丁目
この地域周辺の物件を見る |
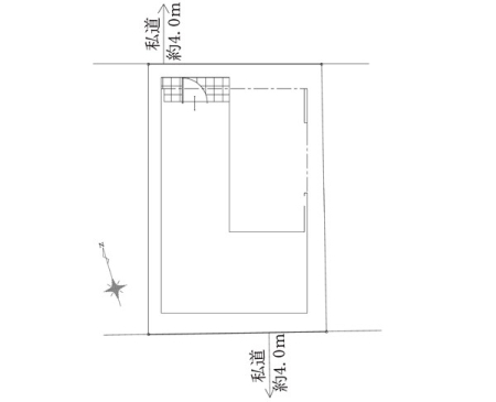
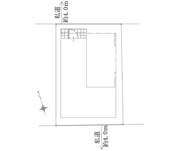
土地面積 | 58m² (17.55坪) | 建物面積 | 105.97u |
| 築年月 | 2026年6月築 | 間取り | 4LDK (-) | ||
| 交通 |
京急大師線 小島新田 徒歩4分
|
||||
| 特徴 |
|
|---|---|
| セールスコメント | |
| 採光面 | - | 構造/階数 | 木造/地上3階建 |
|---|---|---|---|
| 建ぺい率 | 60(%) | 容積率 | 200(%) |
| 駐車場 | 有 | 現況/引渡し | -/2026年6月下旬 |
| 土地権利 | 所有権 | 私道負担面積 | あり 15.41m² |
| 接道状況 | 接道: 北東 私道 道路幅: 4m 接道: 南西 私道 道路幅: 4m |
用途地域 |
準工業地域
|
| セットバック | なし | 法令上の制限 | 準防火地域 第3種高度地区 景観地区 道路斜線制限 隣地斜線制限 日陰規制 大師臨港地帯土地区画整理事業 第W工区 川崎市緑の基本計画 隣地(東側西側)との境に共有ブロック有 |
| 地目 | 宅地 | 地勢 | 平坦 |
| 建築確認番号 | 第25UDIK建101641号 | 都市計画 | 市街化区域 |
| 取引態様 | 仲介 | ||
| 情報更新日 | 2026年05月09日 | 次回更新日 | 2026年05月23日 |
| 小学校区 | 川崎市立殿町小学校 (神奈川県川崎市) この学区の他の物件を見る |
中学校区 | 大師中学校 (神奈川県川崎市) この学区の他の物件を見る |
|---|
| 価格 | 万円 | ||
|---|---|---|---|
| 年利率 | % |
||
| ボーナス払い | 返済年数 | ||
| 頭金 | 直接入力する | 万円 | |

毎月のご返済額 |
ボーナス(×年2回) |
物件価格5,230万円 |
-