大和市福田3丁目 新築戸建 全4棟 神奈川県大和市福田3丁目|4,380万円の新築一戸建て|エムイーPLUS横浜

エムイーPLUS横浜

045-489-5600

営業時間:9:00~ 定休日:毎週水曜

TOPページ >
物件検索 >
新築一戸建て
>
大和市
>
小田急江ノ島線
>
大和市福田3丁目 新築戸建 全4棟

新築一戸建て

大和市福田3丁目 新築戸建 全4棟

お気に入り
価格 4,380万円値下がり ローンシミュレーション
所在地 神奈川県大和市福田3丁目
この地域周辺の物件を見る
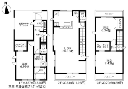
土地面積 121.18m² (36.66坪) 建物面積 90.67u
築年月 2026年6月築 間取り 4LDK (-)
交通
小田急江ノ島線 高座渋谷 徒歩20分
ここがおすすめ

-


  • 現地外観写真 外観■新しい暮らしが始まる場所で、家族の絆を深める
  •  間取り
  • 現地外観写真 外観■まずは一度ご覧ください
  • 現地外観写真 外観■優雅なラインが、毎日を引き立てます
  •  区画図
  • 周辺環境 駅 720m 小田急江ノ島線「桜ヶ丘」駅
  • 周辺環境 小学校 400m 大和市立福田小学校
  • 周辺環境 中学校 1520m 大和市立引地台中学校
  • 周辺環境 幼稚園・保育園 400m モミヤマ幼稚園
  • 周辺環境 病院 700m 桜ヶ丘中央病院
  • 周辺環境 スーパー 300m ina21大和桜ヶ丘店

お問い合わせ、資料請求、見学のお申し込みはこちらから

電話をかける(携帯・PHS可)
045-489-5600
「ホームページを見た」とお伝え下さい。

お問い合わせ番号をお伝えください
RHS-980944397

内見予約
お問合せ

セールスポイント

特徴
  • フローリング
  • システムキッチン
  • 都市ガス
  • プライスダウン
セールスコメント  


物件概要

採光面 - 構造/階数 木造/地上2階建
建ぺい率 60(%) 容積率 200(%)
駐車場 現況/引渡し -/2026年6月下旬
土地権利 所有権 私道負担面積 -

接道状況 接道: 西 公道 道路幅: 16m 用途地域
第一種住居地域
セットバック なし 法令上の制限 準防火地域 特定都市河川浸水被害対策法 航空法 景観法 都市再生特別措置法 土砂災害防止対策推進法
地目 宅地 地勢
建築確認番号 第2025確認建築静建住ま07304号 都市計画 市街化区域
取引態様 仲介
情報更新日 2026年05月11日 次回更新日 2026年05月25日
※各種情報と差異がある場合は現況優先となります

学区情報

小学校区
()
中学校区
()
※物件情報の学区情報について
当サイト物件情報に記載されております通学区域(学区)情報は、国土数値情報ダウンロードサービスが提供する小学校区データ【2021年度】及び中学校区データ【2021年度】を元に加工したものですので、記載情報が現在の学区域と異なる場合がございます。
国土数値情報ダウンロードサービスのWEBサイト上で記述通り、データは必ずしも正確とは言えません。また、通学区域(学区)は毎年見直しの対象となりますので、そちらを踏まえ学区情報は参考としてご活用下さい。

お問い合わせ、資料請求、見学のお申し込みはこちらから

電話をかける(携帯・PHS可)
045-489-5600
「ホームページを見た」とお伝え下さい。

お問い合わせ番号をお伝えください
RHS-980944397

内見予約
お問合せ

この物件でローンシミュレーションする

価格 万円
年利率
ボーナス払い 返済年数
頭金 直接入力する 万円

毎月のご返済額

ボーナス(×年2回)

物件価格

4,380万円
※返済金額はあくまでも目安です。

こちらの物件は複数区画の分譲地・他にも販売中のマンションがあります。

大和市福田3丁目
4080万円〜4580万円

電話をかける(携帯・PHS可)
045-489-5600
「ホームページを見た」とお伝え下さい。

お問い合わせ番号をお伝えください
RHS-980944397

内見予約
お問合せ

お問い合わせ

  1. 1
    内容入力
  2. 2
    内容確認
  3. 3
    完了
お問合せ内容必須
【備考欄】
詳細な見学ご希望時間、ご質問、ご希望条件などがございましたらお聞かせ下さい。
(2000文字以内)
お名前必須
メールアドレス必須
※ご記入いただいたメールアドレス宛てに、お問合せ内容の確認メールをお送りいたします。
※Yahoo!メールなどのフリーメールをご利用の場合、迷惑メールフォルダに入る場合があります。
 迷惑メールのフォルダ・設定等をご確認下さい。
電話番号必須
FAX(任意)
※ご入力いただいたお客さまの個人情報は、「個人情報の取扱いについて」に基づき適正に取り扱います。必ずお読みになり、同意の上お問い合わせください。

お気軽にお問い合わせください

045-489-5600
物件番号 RHS-980944397
※「ホームページを見た」
とお伝え下さい。