川崎市高津区久末3期 新築戸建 全1棟 神奈川県川崎市高津区久末 |5,499万円の新築一戸建て|エムイーPLUS横浜
| 価格 | 5,499万円値下がり ![]() |
||||
|---|---|---|---|---|---|
| 所在地 | 神奈川県川崎市高津区久末
この地域周辺の物件を見る |
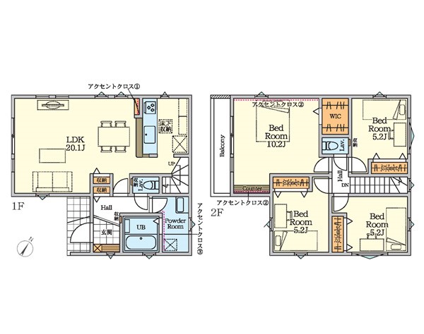
土地面積 | 100.92m² (30.53坪) | 建物面積 | 104.33u |
| 築年月 | 2026年3月築 | 間取り | 4LDK (-) | ||
| 交通 |
JR南武線 武蔵中原 南武線武蔵新城駅 車分
JR南武線 武蔵新城 |
||||
| 特徴 |
|
|---|---|
| セールスコメント | |
| 採光面 | - | 構造/階数 | 木造/地上2階建 |
|---|---|---|---|
| 建ぺい率 | 60(%) | 容積率 | 200(%) |
| 駐車場 | 有 | 現況/引渡し | 空家/即時 |
| 土地権利 | 所有権 | 私道負担面積 | あり 60m² |
| 接道状況 | 接道: 南西 私道 道路幅: 4m | 用途地域 |
第二種中高層住居専用地域
|
| セットバック | なし | 法令上の制限 | 下水処理区域 日影規制3h-2h4m 第2種高度地区 高さの制限15m |
| 地目 | 宅地 | 地勢 | |
| 建築確認番号 | 第25UDI1W建09075号 | 都市計画 | 市街化区域 |
| 取引態様 | 仲介 | ||
| 情報更新日 | 2026年04月30日 | 次回更新日 | 2026年05月14日 |
| 小学校区 | () |
中学校区 | () |
|---|
| 価格 | 万円 | ||
|---|---|---|---|
| 年利率 | % |
||
| ボーナス払い | 返済年数 | ||
| 頭金 | 直接入力する | 万円 | |

毎月のご返済額 |
ボーナス(×年2回) |
物件価格5,499万円 |
-