藤沢市辻堂東海岸1丁目 新築戸建 全3棟 神奈川県藤沢市辻堂東海岸1丁目|6,480万円の新築一戸建て|エムイーPLUS横浜
| 価格 | 6,480万円 ![]() |
||||
|---|---|---|---|---|---|
| 所在地 | 神奈川県藤沢市辻堂東海岸1丁目
この地域周辺の物件を見る |
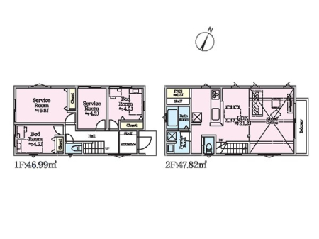
土地面積 | 121.02m² (36.61坪) | 建物面積 | 93.36u |
| 築年月 | 2025年11月築 | 間取り | 2SLDK (-) | ||
| 交通 |
JR東海道本線 辻堂 徒歩22分
小田急江ノ島線 鵠沼海岸 徒歩20分 |
||||
| 特徴 |
|
|---|---|
| セールスコメント | |
| 採光面 | - | 構造/階数 | 木造/地上2階建 |
|---|---|---|---|
| 建ぺい率 | 40(%) | 容積率 | 80(%) |
| 駐車場 | 有 | 現況/引渡し | 空家/即時 |
| 土地権利 | 所有権 | 私道負担面積 | あり 444m² |
| 接道状況 | 接道: 北東 私道 道路幅: 4m | 用途地域 |
第一種低層住居専用地域
|
| セットバック | なし | 法令上の制限 | 引渡可能時期:2026年4月中旬以降 |
| 地目 | 宅地 | 地勢 | |
| 建築確認番号 | 第25KAK建確00139号 | 都市計画 | 市街化区域 |
| 取引態様 | 仲介 | ||
| 情報更新日 | 2026年04月22日 | 次回更新日 | 2026年05月06日 |
| 小学校区 | 藤沢市立辻堂小学校 (神奈川県藤沢市) この学区の他の物件を見る |
中学校区 | 湘洋中学校 (神奈川県藤沢市) この学区の他の物件を見る |
|---|
| 価格 | 万円 | ||
|---|---|---|---|
| 年利率 | % |
||
| ボーナス払い | 返済年数 | ||
| 頭金 | 直接入力する | 万円 | |

毎月のご返済額 |
ボーナス(×年2回) |
物件価格6,480万円 |
![]() |
![]() |
藤沢市辻堂東海岸1丁目
6380万円〜6480万円 |
-