日野市大坂上3丁目第3期 新築戸建 全3棟 東京都日野市大坂上3丁目|6,980万円の新築一戸建て|エムイーPLUS横浜
| 価格 | 6,980万円 ![]() |
||||
|---|---|---|---|---|---|
| 所在地 | 東京都日野市大坂上3丁目
この地域周辺の物件を見る |
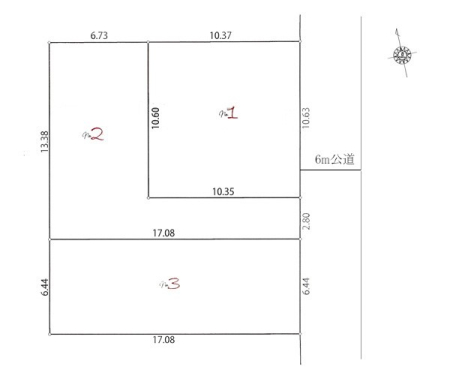
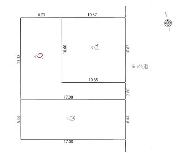
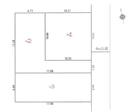
土地面積 | 110.07m² (33.3坪) | 建物面積 | 99.57u |
| 築年月 | 2026年8月築 | 間取り | 3SLDK (-) | ||
| 交通 |
JR中央線 日野 徒歩8分
JR中央線 豊田 徒歩28分 |
||||
| 特徴 |
|
|---|---|
| セールスコメント | |
| 採光面 | - | 構造/階数 | 木造/地上2階建 |
|---|---|---|---|
| 建ぺい率 | 50(%) | 容積率 | 100(%) |
| 駐車場 | 有 | 現況/引渡し | -/2026年8月下旬 |
| 土地権利 | 所有権 | 私道負担面積 | - |
| 接道状況 | 接道: 東 公道 道路幅: 6m | 用途地域 |
第一種低層住居専用地域
|
| セットバック | なし | 法令上の制限 | 景観法 22条区域 第一種高度地区 航空法 埋蔵文化財包蔵地内 宅地造成及び特定盛土等規制法 |
| 地目 | 宅地 | 地勢 | |
| 建築確認番号 | TKK確済25-772号 | 都市計画 | 市街化区域 |
| 取引態様 | 仲介 | ||
| 情報更新日 | 2026年04月23日 | 次回更新日 | 2026年05月07日 |
| 小学校区 | 日野市立日野第七小学校 (東京都日野市) この学区の他の物件を見る |
中学校区 | 大坂上中学校 (東京都日野市) この学区の他の物件を見る |
|---|
| 価格 | 万円 | ||
|---|---|---|---|
| 年利率 | % |
||
| ボーナス払い | 返済年数 | ||
| 頭金 | 直接入力する | 万円 | |

毎月のご返済額 |
ボーナス(×年2回) |
物件価格6,980万円 |
![]() |
![]() |
日野市大坂上3丁目
6580万円〜6980万円 |
-