相模原市中央区清新4丁目 新築戸建 全2棟 神奈川県相模原市中央区清新4丁目|4,880万円の新築一戸建て|エムイーPLUS横浜

エムイーPLUS横浜

045-489-5600

営業時間:9:00~ 定休日:毎週水曜

TOPページ >
物件検索 >
新築一戸建て
>
相模原市中央区
>
JR横浜線
>
相模原市中央区清新4丁目 新築戸建 全2棟

新築一戸建て

相模原市中央区清新4丁目 新築戸建 全2棟

お気に入り
価格 4,880万円 ローンシミュレーション
所在地 神奈川県相模原市中央区清新4丁目
この地域周辺の物件を見る
土地面積 119.64m² (36.19坪) 建物面積 64.87u
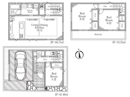
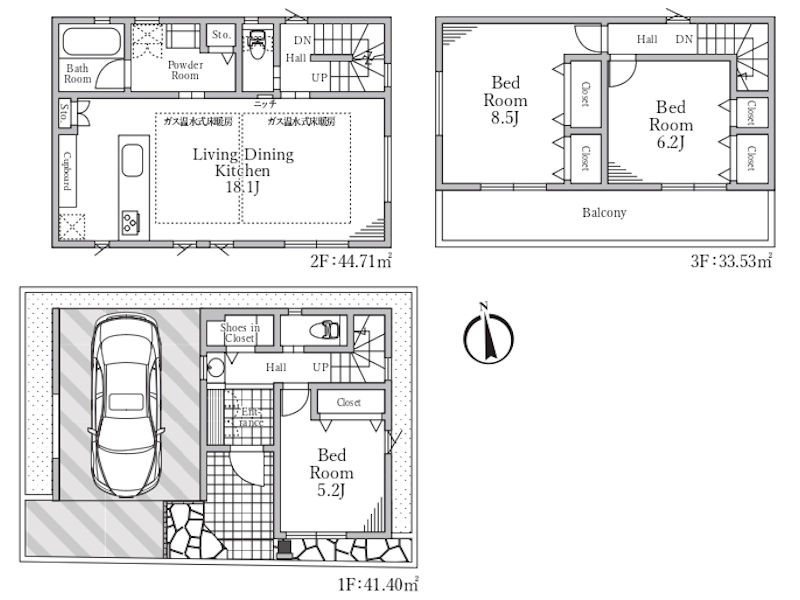
築年月 2026年5月築 間取り 3LDK (-)
交通
JR横浜線 相模原 徒歩14分
JR相模線 南橋本 徒歩12分
ここがおすすめ

-


  • 現地外観写真 外観■暮らしを彩る充実した設備仕様が備わった住まい
  •  間取り
  • 現地外観写真 外観■家族みんなが笑顔で過ごせる、安心感のある住まい
  • 現地外観写真 外観■新しい時代の息吹を感じる、心地よい環境
  • 現地外観写真 外観■暮らしを彩る充実した設備仕様が備わった住まい
  •  区画図
  • 玄関 内装■ 家族やゲストをやさしく迎える、心地よい空間
  • トイレ 内装■毎日使う場所だからこそ、清潔感溢れる空間
  • 洗面台・洗面所 内装■清潔感があり、気持ちよく使えます
  • 浴室 内装■一日の疲れを癒す、心落ち着く空間です
  • キッチン 内装■家族の絆を深める、温もりのあるキッチン
  • キッチン 内装■作る楽しみと食べる幸せを届けるキッチン
  • キッチン 内装■料理がもっと楽しくなる、快適なキッチン空間
  • リビング 内装■家族の時間を彩る、快適で癒される空間
  • リビング 内装■居心地のいい、理想のリビング
  • その他内観 内装■何気ない毎日を特別にする、癒しの空間
  • リビング 内装■自然と会話が生まれる、心地よいひととき
  • その他内観 内装■どこになにを置くか楽しみな自分のお部屋
  • 子供部屋 内装■読書や趣味リモートワークなどさまざまな用途に対応できる柔軟さがあります
  • 寝室 内装■窓の配置や通気性の良い設計で部屋の空気がこもらず、常に新鮮な空気が流れます
  • その他内観 内装■機能的で使いやすいお部屋で毎日を快適に
  • バルコニー 内装■ 朝のコーヒーや夜の星空を楽しむ、癒しの場所
  • 収納 内装■シューズインクローゼットでおしゃれに見せる収納で玄関すっきり
  • リビング 内装■くつろぎと笑顔が集まる、心温まるリビング
  • その他内観 内装■落ち着いた雰囲気のお部屋で心が安らぐ空間
  • その他内観 内装■シンプルで使いやすい空間がスッキリ感じられます
  • 収納 内装■収納スペースあり!ぜひ現地でご覧ください
  • その他内観 設備■不在時でも荷物が受け取れる便利な宅配ボックス
  • その他内観 設備■鍵を取り出さずに便利に操作できて快適
  • その他内観 設備■温水洗浄で快適、清潔感が保たれるシャワートイレ

お問い合わせ、資料請求、見学のお申し込みはこちらから

電話をかける(携帯・PHS可)
045-489-5600
「ホームページを見た」とお伝え下さい。

お問い合わせ番号をお伝えください
RHS-980941280

内見予約
お問合せ

セールスポイント

特徴
  • フローリング
  • 床暖房
  • システムキッチン
  • バルコニー
  • 都市ガス
セールスコメント  


物件概要

採光面 - 構造/階数 木造/地上3階建
建ぺい率 60(%) 容積率 200(%)
駐車場 現況/引渡し -/2026年5月下旬
土地権利 所有権 私道負担面積 -

接道状況 接道: 北 公道 道路幅: 6m
接道: 南 公道 道路幅: 4m
用途地域
第一種住居地域
セットバック なし 法令上の制限 駐車場面積19.87平米含
地目 宅地 地勢
建築確認番号 第25UDI1T建02728号 都市計画 市街化区域
取引態様 仲介
情報更新日 2026年04月23日 次回更新日 2026年05月07日
※各種情報と差異がある場合は現況優先となります

学区情報

小学校区 相模原市立小山小学校
(神奈川県相模原市)
この学区の他の物件を見る
中学校区 小山中学校
(神奈川県相模原市)
この学区の他の物件を見る
※物件情報の学区情報について
当サイト物件情報に記載されております通学区域(学区)情報は、国土数値情報ダウンロードサービスが提供する小学校区データ【2021年度】及び中学校区データ【2021年度】を元に加工したものですので、記載情報が現在の学区域と異なる場合がございます。
国土数値情報ダウンロードサービスのWEBサイト上で記述通り、データは必ずしも正確とは言えません。また、通学区域(学区)は毎年見直しの対象となりますので、そちらを踏まえ学区情報は参考としてご活用下さい。

お問い合わせ、資料請求、見学のお申し込みはこちらから

電話をかける(携帯・PHS可)
045-489-5600
「ホームページを見た」とお伝え下さい。

お問い合わせ番号をお伝えください
RHS-980941280

内見予約
お問合せ

この物件でローンシミュレーションする

価格 万円
年利率
ボーナス払い 返済年数
頭金 直接入力する 万円

毎月のご返済額

ボーナス(×年2回)

物件価格

4,880万円
※返済金額はあくまでも目安です。

こちらの物件は複数区画の分譲地・他にも販売中のマンションがあります。

相模原市中央区清新4丁目
4780万円〜4880万円
  • こちらの物件を見たお客様はこんな物件もチェックしています。
  • お気に入り物件

電話をかける(携帯・PHS可)
045-489-5600
「ホームページを見た」とお伝え下さい。

お問い合わせ番号をお伝えください
RHS-980941280

内見予約
お問合せ

お問い合わせ

  1. 1
    内容入力
  2. 2
    内容確認
  3. 3
    完了
お問合せ内容必須
【備考欄】
詳細な見学ご希望時間、ご質問、ご希望条件などがございましたらお聞かせ下さい。
(2000文字以内)
お名前必須
メールアドレス必須
※ご記入いただいたメールアドレス宛てに、お問合せ内容の確認メールをお送りいたします。
※Yahoo!メールなどのフリーメールをご利用の場合、迷惑メールフォルダに入る場合があります。
 迷惑メールのフォルダ・設定等をご確認下さい。
電話番号必須
FAX(任意)
※ご入力いただいたお客さまの個人情報は、「個人情報の取扱いについて」に基づき適正に取り扱います。必ずお読みになり、同意の上お問い合わせください。

お気軽にお問い合わせください

045-489-5600
物件番号 RHS-980941280
※「ホームページを見た」
とお伝え下さい。