綾瀬市寺尾本町3丁目第1期 新築戸建 全8棟 神奈川県綾瀬市寺尾本町3丁目|3,480万円の新築一戸建て|エムイーPLUS横浜

エムイーPLUS横浜

045-489-5600

営業時間:9:00~ 定休日:毎週水曜

TOPページ >
物件検索 >
新築一戸建て
>
綾瀬市
>
相鉄本線
>
綾瀬市寺尾本町3丁目第1期 新築戸建 全8棟

新築一戸建て

綾瀬市寺尾本町3丁目第1期 新築戸建 全8棟

お気に入り
価格 3,480万円値下がり ローンシミュレーション
所在地 神奈川県綾瀬市寺尾本町3丁目
この地域周辺の物件を見る
土地面積 102.48m² (31坪) 建物面積 75.76u
築年月 2026年1月築 間取り 3LDK (-)
交通
相鉄本線 さがみ野 バス9分 寺尾 停歩5分
相鉄本線 かしわ台 徒歩25分
ここがおすすめ

-


  • 現地外観写真 外観■暮らしを彩る充実した設備仕様が備わった住まい
  •  間取り
  • 現地外観写真 外観■家族みんなが笑顔で過ごせる、安心感のある住まい
  • 現地外観写真 外観■新しい時代の息吹を感じる、心地よい環境
  • 現地外観写真 外観■暮らしを彩る充実した設備仕様が備わった住まい
  •  外観■自宅にカースペースがあると助かります
  • 玄関 外観■ シンプルで美しく、住まいの第一印象を彩る玄関です
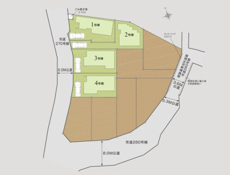
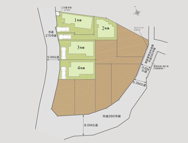
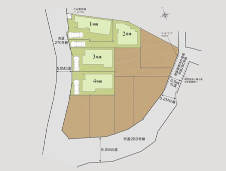
  •  区画図
  • 玄関 内装■ ここから始まる一日、すっきり整った玄関
  • トイレ 内装■毎日使う場所だからこそ、清潔感溢れる空間
  • 洗面台・洗面所 内装■朝の準備がスムーズにできる広さです
  • 浴室 内装■家族みんなが気持ちよく使える設計です
  • キッチン 内装■シンプルで機能的、毎日使いやすいキッチン
  • キッチン 内装■キレイに片付く、使いやすいキッチン
  • キッチン 内装■家族の絆を深める、温もりのあるキッチン
  • リビング 内装■心落ち着く場所、ゆったり過ごせるリビング
  • リビング 内装■シンプルだけど贅沢、大切な人と過ごす心がほどける空間
  • その他内観 内装■ふとした瞬間に幸せを感じる、心地よい場所
  • リビング 内装■光と風を感じる、リラックスできる空間
  • その他内観 内装■優雅で穏やかな時間が流れる空間
  • 子供部屋 内装■仕事や勉強のスペースに使うことで、集中しやすく静かな環境が整います
  • 寝室 内装■快適な環境で、日常の疲れを癒せる空間
  • その他内観 内装■落ち着いた色合いのお部屋で穏やかな時間を楽しめます
  • その他 内装■WIC付きで衣類も荷物もまとめて収納できる便利な空間です
  • その他内観 設備■鍵を取り出さずに便利に操作できて快適
  • その他内観 設備■手洗いや顔を洗う時も快適に使える便利なシャワー
  • その他内観 設備■温水洗浄で快適、清潔感が保たれるシャワートイレ
  • その他内観 設備■清潔でおいしい水を手軽に供給してくれます
  • その他内観 設備■調理時の蒸気や匂いが換気扇に誘導され、効率的に排煙ができます。
  • その他内観 設備■手元で簡単に止水できるため、水の無駄遣いを減らすことができます。

お問い合わせ、資料請求、見学のお申し込みはこちらから

電話をかける(携帯・PHS可)
045-489-5600
「ホームページを見た」とお伝え下さい。

お問い合わせ番号をお伝えください
RHS-980936842

内見予約
お問合せ

セールスポイント

特徴
  • フローリング
  • システムキッチン
  • Wクローゼット
  • バルコニー
  • 都市ガス
  • プライスダウン
セールスコメント  


物件概要

採光面 - 構造/階数 木造/地上2階建
建ぺい率 60(%) 容積率 200(%)
駐車場 現況/引渡し 空家/即時
土地権利 所有権 私道負担面積 -

接道状況 接道: 北西 公道 道路幅: 5m 用途地域
第一種中高層住居専用地域
セットバック なし 法令上の制限 -
地目 宅地 地勢
建築確認番号 第KS125-3820-50364号 都市計画 市街化区域
取引態様 仲介
情報更新日 2026年04月23日 次回更新日 2026年05月07日
※各種情報と差異がある場合は現況優先となります

学区情報

小学校区 綾瀬市立綾北小学校
(神奈川県綾瀬市)
この学区の他の物件を見る
中学校区 綾北中学校
(神奈川県綾瀬市)
この学区の他の物件を見る
※物件情報の学区情報について
当サイト物件情報に記載されております通学区域(学区)情報は、国土数値情報ダウンロードサービスが提供する小学校区データ【2021年度】及び中学校区データ【2021年度】を元に加工したものですので、記載情報が現在の学区域と異なる場合がございます。
国土数値情報ダウンロードサービスのWEBサイト上で記述通り、データは必ずしも正確とは言えません。また、通学区域(学区)は毎年見直しの対象となりますので、そちらを踏まえ学区情報は参考としてご活用下さい。

お問い合わせ、資料請求、見学のお申し込みはこちらから

電話をかける(携帯・PHS可)
045-489-5600
「ホームページを見た」とお伝え下さい。

お問い合わせ番号をお伝えください
RHS-980936842

内見予約
お問合せ

この物件でローンシミュレーションする

価格 万円
年利率
ボーナス払い 返済年数
頭金 直接入力する 万円

毎月のご返済額

ボーナス(×年2回)

物件価格

3,480万円
※返済金額はあくまでも目安です。

こちらの物件は複数区画の分譲地・他にも販売中のマンションがあります。

綾瀬市寺尾本町3丁目
3480万円〜3780万円
  • こちらの物件を見たお客様はこんな物件もチェックしています。
  • お気に入り物件

同じ価格帯の物件はこちら

広さの近い物件はこちら

同じ学区の物件はこちら

電話をかける(携帯・PHS可)
045-489-5600
「ホームページを見た」とお伝え下さい。

お問い合わせ番号をお伝えください
RHS-980936842

内見予約
お問合せ

お問い合わせ

  1. 1
    内容入力
  2. 2
    内容確認
  3. 3
    完了
お問合せ内容必須
【備考欄】
詳細な見学ご希望時間、ご質問、ご希望条件などがございましたらお聞かせ下さい。
(2000文字以内)
お名前必須
メールアドレス必須
※ご記入いただいたメールアドレス宛てに、お問合せ内容の確認メールをお送りいたします。
※Yahoo!メールなどのフリーメールをご利用の場合、迷惑メールフォルダに入る場合があります。
 迷惑メールのフォルダ・設定等をご確認下さい。
電話番号必須
FAX(任意)
※ご入力いただいたお客さまの個人情報は、「個人情報の取扱いについて」に基づき適正に取り扱います。必ずお読みになり、同意の上お問い合わせください。

お気軽にお問い合わせください

045-489-5600
物件番号 RHS-980936842
※「ホームページを見た」
とお伝え下さい。