横浜市瀬谷区上瀬谷町 中古戸建 神奈川県横浜市瀬谷区上瀬谷町 |3,180万円の中古一戸建て|エムイーPLUS横浜

エムイーPLUS横浜

045-489-5600

営業時間:9:00~ 定休日:毎週水曜

TOPページ >
物件検索 >
中古一戸建て
>
横浜市瀬谷区
>
相鉄本線
>
横浜市瀬谷区上瀬谷町 中古戸建

中古一戸建て

横浜市瀬谷区上瀬谷町 中古戸建

お気に入り
価格 3,180万円 ローンシミュレーション
所在地 神奈川県横浜市瀬谷区上瀬谷町
この地域周辺の物件を見る
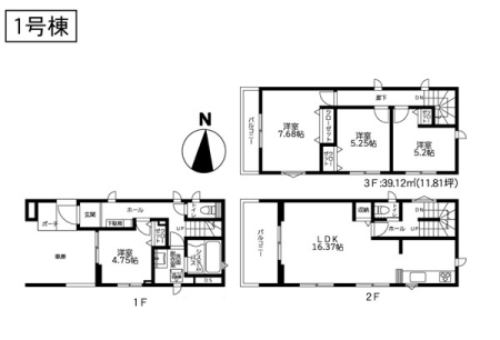
土地面積 141.64m² (42.85坪) 建物面積 108.47u
築年月 1996年9月築 間取り 4LDK (-)
交通
相鉄本線 瀬谷 バス8分 八幡神社前 停歩3分
ここがおすすめ

カースペース1台1あり♪システムキッチン IHクッキングヒーター 洗浄便座 浴室に窓 浄水器 食器洗機 浴室乾燥機 浴室TV 24時間換気システム LDK15帖以上オール電化シャッター雨戸 南側庭あり


  • 現地外観写真 外観■まずは一度ご覧ください
  •  間取り
  • 現地外観写真 外観■家族とのお出かけが楽しくなる環境です
  • 現地外観写真 外観■暮らしを彩る充実した設備仕様が備わった住まい
  • リビング 内装■インテリアを考えるのが楽しみな広いリビングです!
  • リビング 内装■リビング横に居室があり、続き間として開放感あるスペースが確保できます。
  • キッチン 内装■定番のカウンターキッチンだから、リビングが見渡せて安心です
  • 洗面台・洗面所 内装■明るく広い洗面所は毎朝の歯磨きも楽しくできちゃいそうです
  • 浴室 内装■ゆったり広々タイプで、お子様と一緒のバスタイム、至福の時間ですね!
  • その他内観 内装■2面採光で明るい居室!
  • その他内観 内装■どこになにを置くか楽しみな自分のお部屋
  • その他内観 内装■太陽がサンサンと降り注ぐお部屋は気持ちがいいですね
  • 玄関 内装■広々、綺麗な玄関でお客様をお出迎え!
  • キッチン 内装■広々キッチンでお子さんも一緒にお手伝いできます!
  • 周辺環境 駅 3000m 相模鉄道瀬谷駅
  • 周辺環境 小学校 380m 横浜市立上瀬谷小学校
  • 周辺環境 中学校 2550m 横浜市立瀬谷中学校
  • 周辺環境 幼稚園・保育園 928m 横浜市中屋敷保育園
  • 周辺環境 病院 1892m 大和市立病院

お問い合わせ、資料請求、見学のお申し込みはこちらから

電話をかける(携帯・PHS可)
045-489-5600
「ホームページを見た」とお伝え下さい。

お問い合わせ番号をお伝えください
RHS-130900313

内見予約
お問合せ

セールスポイント

特徴
  • フローリング
  • 床暖房
  • オール電化
  • システムキッチン
  • カウンターキッチン
  • 追い焚き
  • バス・トイレ別
  • シャワートイレ
  • 浴室乾燥機
  • IHクッキングヒーター
  • Wクローゼット
  • TVドアホン
セールスコメント  横浜市立上瀬谷小学校 380m 横浜市立瀬谷中学校 2550m


物件概要

採光面 - 構造/階数 木造/地上2階建
建ぺい率 40(%) 容積率 80(%)
駐車場 現況/引渡し 空家/相談
土地権利 所有権 私道負担面積 あり
361m²
接道状況 接道: 南 私道 道路幅: 4.5m 用途地域
第一種低層住居専用地域
セットバック なし 法令上の制限 第一種高度地区 緑化地域 建築基準法第22条による区域 私道持分:361.00平米(持分98,681,440分の7,393,608)
地目 宅地 地勢
建築確認番号 都市計画 市街化区域
取引態様 仲介
情報更新日 2026年04月18日 次回更新日 2026年05月02日
※各種情報と差異がある場合は現況優先となります

学区情報

小学校区
()
中学校区
()
※物件情報の学区情報について
当サイト物件情報に記載されております通学区域(学区)情報は、国土数値情報ダウンロードサービスが提供する小学校区データ【2021年度】及び中学校区データ【2021年度】を元に加工したものですので、記載情報が現在の学区域と異なる場合がございます。
国土数値情報ダウンロードサービスのWEBサイト上で記述通り、データは必ずしも正確とは言えません。また、通学区域(学区)は毎年見直しの対象となりますので、そちらを踏まえ学区情報は参考としてご活用下さい。

お問い合わせ、資料請求、見学のお申し込みはこちらから

電話をかける(携帯・PHS可)
045-489-5600
「ホームページを見た」とお伝え下さい。

お問い合わせ番号をお伝えください
RHS-130900313

内見予約
お問合せ

この物件でローンシミュレーションする

価格 万円
年利率
ボーナス払い 返済年数
頭金 直接入力する 万円

毎月のご返済額

ボーナス(×年2回)

物件価格

3,180万円
※返済金額はあくまでも目安です。
  • こちらの物件を見たお客様はこんな物件もチェックしています。
  • お気に入り物件

電話をかける(携帯・PHS可)
045-489-5600
「ホームページを見た」とお伝え下さい。

お問い合わせ番号をお伝えください
RHS-130900313

内見予約
お問合せ

お問い合わせ

  1. 1
    内容入力
  2. 2
    内容確認
  3. 3
    完了
お問合せ内容必須
【備考欄】
詳細な見学ご希望時間、ご質問、ご希望条件などがございましたらお聞かせ下さい。
(2000文字以内)
お名前必須
メールアドレス必須
※ご記入いただいたメールアドレス宛てに、お問合せ内容の確認メールをお送りいたします。
※Yahoo!メールなどのフリーメールをご利用の場合、迷惑メールフォルダに入る場合があります。
 迷惑メールのフォルダ・設定等をご確認下さい。
電話番号必須
FAX(任意)
※ご入力いただいたお客さまの個人情報は、「個人情報の取扱いについて」に基づき適正に取り扱います。必ずお読みになり、同意の上お問い合わせください。

お気軽にお問い合わせください

045-489-5600
物件番号 RHS-130900313
※「ホームページを見た」
とお伝え下さい。