茅ヶ崎市南湖2丁目第18 新築戸建 全2棟 神奈川県茅ヶ崎市南湖2丁目|3,780万円の新築一戸建て|エムイーPLUS横浜

エムイーPLUS横浜

045-489-5600

営業時間:9:00~ 定休日:毎週水曜

TOPページ >
物件検索 >
新築一戸建て
>
茅ヶ崎市
>
JR東海道本線
>
茅ヶ崎市南湖2丁目第18 新築戸建 全2棟

新築一戸建て

茅ヶ崎市南湖2丁目第18 新築戸建 全2棟

お気に入り
価格 3,780万円値下がり ローンシミュレーション
所在地 神奈川県茅ヶ崎市南湖2丁目
この地域周辺の物件を見る
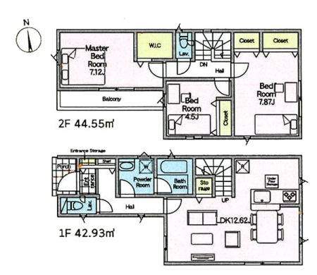
土地面積 85.09m² (25.74坪) 建物面積 87.48u
築年月 2026年1月築 間取り 3LDK (-)
交通
JR東海道本線 バス8分 団地北口 停歩4分
ここがおすすめ

-


  • 現地外観写真 外観■家族みんなが笑顔で過ごせる、安心感のある住まい
  •  間取り
  • 現地外観写真 外観■暮らしを豊かにする充実した仕様設備で快適に
  • 現地外観写真 外観■この道を歩けば、毎日が少し特別になる
  • 現地外観写真 外観■家族みんなが笑顔で過ごせる、安心感のある住まい
  • 現地外観写真 外観■暮らしを豊かにする充実した仕様設備で快適に
  •  外観■毎日の駐車が快適に
  • 玄関 外観■ ここから始まる、笑顔あふれる毎日
  •  区画図
  • 玄関 内装■玄関はお家の顔!おしゃれな玄関でお客様をお迎え!
  • トイレ 内装■使いやすさと清潔感にこだわった空間
  • 洗面台・洗面所 内装■お洒落で清潔感のある洗面所
  • 浴室 内装■リラックスできる、穏やかな雰囲気です
  • キッチン 内装■美味しい時間が生まれる、笑顔あふれるキッチン
  • キッチン 内装■美味しさの魔法がかかる、特別なキッチン
  • キッチン 内装■アイデア広がる、クリエイティブな料理空間
  • リビング 内装■光と風を感じる、リラックスできる空間
  • リビング 内装■日常をちょっと特別にする、憩いの空間
  • その他内観 内装■自然と心がほどける、リラックスできる場所
  • リビング 内装■くつろぎと笑顔が集まる、心温まるリビング
  • その他内観 内装■自分だけのスペース どんなお部屋にするかとっても楽しみですね
  • 子供部屋 内装■自分の好みに合わせたインテリアを整えやすく個性を反映できる場所です
  • 寝室 内装■シンプルな空間で、収納付きベッドやデスクなど、多機能な家具を活用しやすいです
  • その他内観 内装■シンプルで使いやすい空間がスッキリ感じられます
  • バルコニー 内装■ 空を眺めながら、ほっと一息つける特別な空間
  • その他内観 設備■日用品やストックに便利な床下収納
  • その他内観 設備■不純物をしっかり除去して安心して飲めます
  • その他内観 設備■お風呂で読書や半身浴をするなど、入浴時間が長い方にも嬉しい機能です。
  • その他内観 設備■複数の鍋が同時に使えますね
  • その他内観 設備■フードに覆われている為、匂いが換気扇に誘導され、効率的に排煙ができます

お問い合わせ、資料請求、見学のお申し込みはこちらから

電話をかける(携帯・PHS可)
045-489-5600
「ホームページを見た」とお伝え下さい。

お問い合わせ番号をお伝えください
RHS-980934085

内見予約
お問合せ

セールスポイント

特徴
  • システムキッチン
  • カウンターキッチン
  • シャンプードレッサー
  • シャワートイレ
  • 浴室乾燥機
  • TVドアホン
  • 都市ガス
  • プライスダウン
セールスコメント  


物件概要

採光面 - 構造/階数 木造/地上2階建
建ぺい率 60(%) 容積率 200(%)
駐車場 現況/引渡し 空家/即時
土地権利 所有権 私道負担面積 -

接道状況 接道: 西 公道 道路幅: 6.7m 用途地域
第一種中高層住居専用地域
セットバック なし 法令上の制限 第一種高度地区(立ち上がり12m)宅地造成工事区域工事規制区域 土地面積に協定地部分約0.6平米を含む
地目 宅地 地勢
建築確認番号 第R07SHC108662号 都市計画 市街化区域
取引態様 仲介
情報更新日 2026年05月01日 次回更新日 2026年05月15日
※各種情報と差異がある場合は現況優先となります

学区情報

小学校区
()
中学校区
()
※物件情報の学区情報について
当サイト物件情報に記載されております通学区域(学区)情報は、国土数値情報ダウンロードサービスが提供する小学校区データ【2021年度】及び中学校区データ【2021年度】を元に加工したものですので、記載情報が現在の学区域と異なる場合がございます。
国土数値情報ダウンロードサービスのWEBサイト上で記述通り、データは必ずしも正確とは言えません。また、通学区域(学区)は毎年見直しの対象となりますので、そちらを踏まえ学区情報は参考としてご活用下さい。

お問い合わせ、資料請求、見学のお申し込みはこちらから

電話をかける(携帯・PHS可)
045-489-5600
「ホームページを見た」とお伝え下さい。

お問い合わせ番号をお伝えください
RHS-980934085

内見予約
お問合せ

この物件でローンシミュレーションする

価格 万円
年利率
ボーナス払い 返済年数
頭金 直接入力する 万円

毎月のご返済額

ボーナス(×年2回)

物件価格

3,780万円
※返済金額はあくまでも目安です。

電話をかける(携帯・PHS可)
045-489-5600
「ホームページを見た」とお伝え下さい。

お問い合わせ番号をお伝えください
RHS-980934085

内見予約
お問合せ

お問い合わせ

  1. 1
    内容入力
  2. 2
    内容確認
  3. 3
    完了
お問合せ内容必須
【備考欄】
詳細な見学ご希望時間、ご質問、ご希望条件などがございましたらお聞かせ下さい。
(2000文字以内)
お名前必須
メールアドレス必須
※ご記入いただいたメールアドレス宛てに、お問合せ内容の確認メールをお送りいたします。
※Yahoo!メールなどのフリーメールをご利用の場合、迷惑メールフォルダに入る場合があります。
 迷惑メールのフォルダ・設定等をご確認下さい。
電話番号必須
FAX(任意)
※ご入力いただいたお客さまの個人情報は、「個人情報の取扱いについて」に基づき適正に取り扱います。必ずお読みになり、同意の上お問い合わせください。

お気軽にお問い合わせください

045-489-5600
物件番号 RHS-980934085
※「ホームページを見た」
とお伝え下さい。