鎌倉市台4丁目 新築戸建 全2棟 神奈川県鎌倉市台4丁目|5,180万円の新築一戸建て|エムイーPLUS横浜

エムイーPLUS横浜

045-489-5600

営業時間:9:00~ 定休日:毎週水曜

TOPページ >
物件検索 >
新築一戸建て
>
鎌倉市
>
JR東海道本線
>
鎌倉市台4丁目 新築戸建 全2棟

新築一戸建て

鎌倉市台4丁目 新築戸建 全2棟

お気に入り
価格 5,180万円 ローンシミュレーション
所在地 神奈川県鎌倉市台4丁目
この地域周辺の物件を見る
土地面積 107.56m² (32.54坪) 建物面積 94.39u
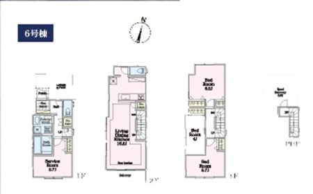
築年月 2026年6月築 間取り 2SLDK (-)
交通
JR東海道本線 大船 徒歩18分
湘南モノレール 富士見町 徒歩5分
ここがおすすめ

-


  • 現地外観写真 周辺環境も合わせてご覧ください!
  •  間取り
  • 現地外観写真 暮らしを彩る充実した設備仕様が備わった新築戸建
  • 現地外観写真 前面道路
  • 現地外観写真 外観■新しい暮らしが始まる場所で、家族の絆を深める
  •  区画図
  • 周辺環境 駅 1440m JR東海道線「大船」駅
  • 周辺環境 小学校 700m 鎌倉市立山崎小学校
  • 周辺環境 中学校 1500m 鎌倉市立大船中学校
  • 周辺環境 幼稚園・保育園 400m 山崎保育園
  • 周辺環境 病院 2000m 湘南鎌倉総合病院
  • 周辺環境 スーパー 600m FUJI大船店

お問い合わせ、資料請求、見学のお申し込みはこちらから

電話をかける(携帯・PHS可)
045-489-5600
「ホームページを見た」とお伝え下さい。

お問い合わせ番号をお伝えください
RHS-980933507

内見予約
お問合せ

セールスポイント

特徴
  • ロフト
  • フローリング
  • 給湯器
  • システムキッチン
  • カウンターキッチン
  • シャンプードレッサー
  • バス・トイレ別
  • シャワートイレ
  • 室内洗濯機置場
  • 浴室乾燥機
  • 床下収納
  • バルコニー
  • TVドアホン
  • 都市ガス
セールスコメント  


物件概要

採光面 - 構造/階数 木造/地上2階建
建ぺい率 60(%) 容積率 150(%)
駐車場 現況/引渡し -/2026年6月下旬
土地権利 所有権 私道負担面積 -

接道状況 接道: 西 私道 道路幅: 4m 用途地域
第一種中高層住居専用地域
セットバック あり 法令上の制限 1号棟:建物面積に玄関部分:1.86平米含
地目 宅地 地勢 平坦
建築確認番号 第25KAK建確02335号 都市計画 市街化区域
取引態様 仲介
情報更新日 2026年04月21日 次回更新日 2026年05月05日
※各種情報と差異がある場合は現況優先となります

学区情報

小学校区 鎌倉市立山崎小学校
(神奈川県鎌倉市)
この学区の他の物件を見る
中学校区 大船中学校
(神奈川県鎌倉市)
この学区の他の物件を見る
※物件情報の学区情報について
当サイト物件情報に記載されております通学区域(学区)情報は、国土数値情報ダウンロードサービスが提供する小学校区データ【2021年度】及び中学校区データ【2021年度】を元に加工したものですので、記載情報が現在の学区域と異なる場合がございます。
国土数値情報ダウンロードサービスのWEBサイト上で記述通り、データは必ずしも正確とは言えません。また、通学区域(学区)は毎年見直しの対象となりますので、そちらを踏まえ学区情報は参考としてご活用下さい。

お問い合わせ、資料請求、見学のお申し込みはこちらから

電話をかける(携帯・PHS可)
045-489-5600
「ホームページを見た」とお伝え下さい。

お問い合わせ番号をお伝えください
RHS-980933507

内見予約
お問合せ

この物件でローンシミュレーションする

価格 万円
年利率
ボーナス払い 返済年数
頭金 直接入力する 万円

毎月のご返済額

ボーナス(×年2回)

物件価格

5,180万円
※返済金額はあくまでも目安です。
  • こちらの物件を見たお客様はこんな物件もチェックしています。
  • お気に入り物件

電話をかける(携帯・PHS可)
045-489-5600
「ホームページを見た」とお伝え下さい。

お問い合わせ番号をお伝えください
RHS-980933507

内見予約
お問合せ

お問い合わせ

  1. 1
    内容入力
  2. 2
    内容確認
  3. 3
    完了
お問合せ内容必須
【備考欄】
詳細な見学ご希望時間、ご質問、ご希望条件などがございましたらお聞かせ下さい。
(2000文字以内)
お名前必須
メールアドレス必須
※ご記入いただいたメールアドレス宛てに、お問合せ内容の確認メールをお送りいたします。
※Yahoo!メールなどのフリーメールをご利用の場合、迷惑メールフォルダに入る場合があります。
 迷惑メールのフォルダ・設定等をご確認下さい。
電話番号必須
FAX(任意)
※ご入力いただいたお客さまの個人情報は、「個人情報の取扱いについて」に基づき適正に取り扱います。必ずお読みになり、同意の上お問い合わせください。

お気軽にお問い合わせください

045-489-5600
物件番号 RHS-980933507
※「ホームページを見た」
とお伝え下さい。