相模原市中央区上溝 新築戸建 全2棟 神奈川県相模原市中央区上溝 |4,980万円の新築一戸建て|エムイーPLUS横浜

エムイーPLUS横浜

045-489-5600

営業時間:9:00~ 定休日:毎週水曜

TOPページ >
物件検索 >
新築一戸建て
>
相模原市中央区
>
JR相模線
>
相模原市中央区上溝 新築戸建 全2棟

新築一戸建て

相模原市中央区上溝 新築戸建 全2棟

お気に入り
価格 4,980万円 ローンシミュレーション
所在地 神奈川県相模原市中央区上溝
この地域周辺の物件を見る
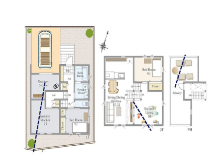
土地面積 115.35m² (34.89坪) 建物面積 101.43u
築年月 2026年6月築 間取り 3SLDK (-)
交通
JR相模線 上溝 徒歩10分
JR相模線 番田 徒歩17分
ここがおすすめ

-


  • 現地外観写真 6号棟  ■暮らしを豊かにする充実した仕様設備で快適に
  •  6号棟
  • 現地外観写真 6号棟  ■新しい暮らしが始まる場所で、家族の絆を深める
  • 現地外観写真 外観■新しい住まい、街の新しい風景
  • 現地外観写真 6号棟  ■暮らしを豊かにする充実した仕様設備で快適に
  • 現地外観写真 6号棟  ■陽当たり良好の住まいから始まる健康な生活
  • その他 6号棟  ■秘密基地のようなわくわく感があるアウトドアストッカー!
  • 玄関 6号棟  ■ ここから始まる一日、すっきり整った玄関
  • トイレ 6号棟  ■明るく清潔感溢れるトイレ
  • 洗面台・洗面所 6号棟  ■お洒落で清潔感のある洗面所です!
  • 浴室 6号棟  ■家族みんなが気持ちよく使える設計です
  • その他内観 設備■温水洗浄で快適、清潔感が保たれるシャワートイレ
  • その他内観 設備■手洗いや顔を洗う時も快適に使える便利なシャワー
  • その他内観 設備■一度に多くの料理ができ便利で効率的
  • その他内観 設備■調理時の蒸気や匂いが換気扇に誘導され、効率的に排煙ができます。
  • その他内観 設備■時間短縮でき家事が楽になる便利な必需品
  • その他内観 設備■清潔でおいしい水を手軽に供給してくれます
  • その他内観 設備■訪問者を確認できて安心感が増します
  • その他内観 設備■家族の入浴時間がバラバラでも、いつでも温かいお風呂に入れます。
  • 周辺環境 駅 1000m JR相模線「上溝」駅
  • 周辺環境 小学校 1400m 相模原市立上溝南小学校
  • 周辺環境 中学校 1470m 相模原市立上溝南中学校
  • 周辺環境 幼稚園・保育園 600m ひよこ第2保育園
  • 周辺環境 病院 1200m まつざわクリニック
  • 周辺環境 スーパー 480m スーパー三和 上溝店(■家族みんなが笑顔で過ごせる、安心感のある住まい)

お問い合わせ、資料請求、見学のお申し込みはこちらから

電話をかける(携帯・PHS可)
045-489-5600
「ホームページを見た」とお伝え下さい。

お問い合わせ番号をお伝えください
RHS-980932081

内見予約
お問合せ

セールスポイント

特徴
  • フローリング
  • 室内洗濯機置場
  • バルコニー
  • 都市ガス
セールスコメント  


物件概要

採光面 - 構造/階数 木造/地上2階建
建ぺい率 60(%) 容積率 150(%)
駐車場 現況/引渡し -/2026年6月下旬
土地権利 所有権 私道負担面積 -

接道状況 接道: 北 8.7m 私道 道路幅: 5m 用途地域
第一種中高層住居専用地域
セットバック なし 法令上の制限 -
地目 宅地 地勢
建築確認番号 第25UDI1K建00525号 都市計画 市街化区域
取引態様 仲介
情報更新日 2026年05月18日 次回更新日 2026年06月01日
※各種情報と差異がある場合は現況優先となります

学区情報

小学校区 相模原市立上溝南小学校
(神奈川県相模原市)
この学区の他の物件を見る
中学校区 上溝南中学校
(神奈川県相模原市)
この学区の他の物件を見る
※物件情報の学区情報について
当サイト物件情報に記載されております通学区域(学区)情報は、国土数値情報ダウンロードサービスが提供する小学校区データ【2021年度】及び中学校区データ【2021年度】を元に加工したものですので、記載情報が現在の学区域と異なる場合がございます。
国土数値情報ダウンロードサービスのWEBサイト上で記述通り、データは必ずしも正確とは言えません。また、通学区域(学区)は毎年見直しの対象となりますので、そちらを踏まえ学区情報は参考としてご活用下さい。

お問い合わせ、資料請求、見学のお申し込みはこちらから

電話をかける(携帯・PHS可)
045-489-5600
「ホームページを見た」とお伝え下さい。

お問い合わせ番号をお伝えください
RHS-980932081

内見予約
お問合せ

この物件でローンシミュレーションする

価格 万円
年利率
ボーナス払い 返済年数
頭金 直接入力する 万円

毎月のご返済額

ボーナス(×年2回)

物件価格

4,980万円
※返済金額はあくまでも目安です。
  • こちらの物件を見たお客様はこんな物件もチェックしています。
  • お気に入り物件

電話をかける(携帯・PHS可)
045-489-5600
「ホームページを見た」とお伝え下さい。

お問い合わせ番号をお伝えください
RHS-980932081

内見予約
お問合せ

お問い合わせ

  1. 1
    内容入力
  2. 2
    内容確認
  3. 3
    完了
お問合せ内容必須
【備考欄】
詳細な見学ご希望時間、ご質問、ご希望条件などがございましたらお聞かせ下さい。
(2000文字以内)
お名前必須
メールアドレス必須
※ご記入いただいたメールアドレス宛てに、お問合せ内容の確認メールをお送りいたします。
※Yahoo!メールなどのフリーメールをご利用の場合、迷惑メールフォルダに入る場合があります。
 迷惑メールのフォルダ・設定等をご確認下さい。
電話番号必須
FAX(任意)
※ご入力いただいたお客さまの個人情報は、「個人情報の取扱いについて」に基づき適正に取り扱います。必ずお読みになり、同意の上お問い合わせください。

お気軽にお問い合わせください

045-489-5600
物件番号 RHS-980932081
※「ホームページを見た」
とお伝え下さい。