鎌倉市大船4丁目 新築戸建 全3棟 神奈川県鎌倉市大船4丁目|4,580万円の新築一戸建て|エムイーPLUS横浜

エムイーPLUS横浜

045-489-5600

営業時間:9:00~ 定休日:毎週水曜

TOPページ >
物件検索 >
新築一戸建て
>
鎌倉市
>
JR東海道本線
>
鎌倉市大船4丁目 新築戸建 全3棟

新築一戸建て

鎌倉市大船4丁目 新築戸建 全3棟

お気に入り
価格 4,580万円値下がり ローンシミュレーション
所在地 神奈川県鎌倉市大船4丁目
この地域周辺の物件を見る
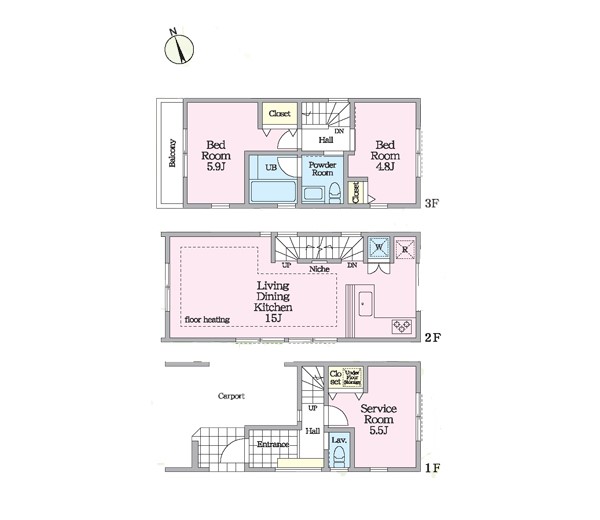
土地面積 45.89m² (13.88坪) 建物面積 90.71u
築年月 2025年10月築 間取り 2SLDK (-)
交通
JR東海道本線 大船 徒歩14分
JR横須賀線 大船 徒歩14分
ここがおすすめ

-


  • 現地外観写真 外観■暮らしを彩る充実した設備仕様が備わった住まい
  •  間取り
  • 現地外観写真 外観■家族みんなが笑顔で過ごせる、安心感のある住まい
  • 現地外観写真 外観■新しい時代の息吹を感じる、心地よい環境
  • 現地外観写真 外観■まずは一度ご覧ください
  •  外観■自宅にカースペースがあると助かります
  • 玄関 外観■ シンプルで美しく、住まいの第一印象を彩る玄関です
  •  区画図
  • 玄関 内装■ 家族やゲストをやさしく迎える、心地よい空間
  • トイレ 内装■毎日使う場所だからこそ、清潔感溢れる空間
  • 洗面台・洗面所 内装■清潔感があり、気持ちよく使えます
  • 浴室 内装■一日の疲れを癒す、心落ち着く空間です
  • キッチン 内装■家族の絆を深める、温もりのあるキッチン
  • キッチン 内装■作る楽しみと食べる幸せを届けるキッチン
  • キッチン 内装■料理がもっと楽しくなる、快適なキッチン空間
  • リビング 内装■くつろぎと笑顔が集まる、心温まるリビング
  • リビング 内装■居心地のいい、理想のリビング
  • その他内観 内装■何気ない毎日を特別にする、癒しの空間
  • リビング 内装■自然と会話が生まれる、心地よいひととき
  • その他内観 内装■どこになにを置くか楽しみな自分のお部屋
  • 子供部屋 内装■読書や趣味リモートワークなどさまざまな用途に対応できる柔軟さがあります
  • 寝室 内装■窓の配置や通気性の良い設計で部屋の空気がこもらず、常に新鮮な空気が流れます
  • その他内観 内装■機能的で使いやすいお部屋で毎日を快適に
  • バルコニー 内装■ 朝のコーヒーや夜の星空を楽しむ、癒しの場所
  • その他内観 内装■落ち着いた雰囲気のお部屋で心が安らぐ空間
  • その他内観 設備■訪問者を確認できて安心感が増します
  • その他内観 設備■鍵を取り出さずに便利に操作できて快適
  • その他内観 設備■清潔でおいしい水を手軽に供給してくれます
  • その他内観 設備■温水洗浄で快適、清潔感が保たれるシャワートイレ
  • その他内観 設備■家族の入浴時間がバラバラでも、いつでも温かいお風呂に入れます。

お問い合わせ、資料請求、見学のお申し込みはこちらから

電話をかける(携帯・PHS可)
045-489-5600
「ホームページを見た」とお伝え下さい。

お問い合わせ番号をお伝えください
RHS-980932080

内見予約
お問合せ

セールスポイント

特徴
  • 床暖房
  • 給湯器
  • シャワートイレ
  • 浴室乾燥機
  • TVドアホン
  • 都市ガス
  • プライスダウン
セールスコメント  


物件概要

採光面 - 構造/階数 木造/地上3階建
建ぺい率 60(%) 容積率 200(%)
駐車場 現況/引渡し 空家/即時
土地権利 所有権 私道負担面積 -

接道状況 接道: 北西 公道 道路幅: 11.3m 用途地域
第一種中高層住居専用地域
セットバック なし 法令上の制限 第1種高度地区 準防火地域 
地目 宅地 地勢
建築確認番号 第KBI-YKH25-10-1281号 都市計画 市街化区域
取引態様 仲介
情報更新日 2026年04月21日 次回更新日 2026年05月05日
※各種情報と差異がある場合は現況優先となります

学区情報

小学校区 鎌倉市立大船小学校
(神奈川県鎌倉市)
この学区の他の物件を見る
中学校区 大船中学校
(神奈川県鎌倉市)
この学区の他の物件を見る
※物件情報の学区情報について
当サイト物件情報に記載されております通学区域(学区)情報は、国土数値情報ダウンロードサービスが提供する小学校区データ【2021年度】及び中学校区データ【2021年度】を元に加工したものですので、記載情報が現在の学区域と異なる場合がございます。
国土数値情報ダウンロードサービスのWEBサイト上で記述通り、データは必ずしも正確とは言えません。また、通学区域(学区)は毎年見直しの対象となりますので、そちらを踏まえ学区情報は参考としてご活用下さい。

お問い合わせ、資料請求、見学のお申し込みはこちらから

電話をかける(携帯・PHS可)
045-489-5600
「ホームページを見た」とお伝え下さい。

お問い合わせ番号をお伝えください
RHS-980932080

内見予約
お問合せ

この物件でローンシミュレーションする

価格 万円
年利率
ボーナス払い 返済年数
頭金 直接入力する 万円

毎月のご返済額

ボーナス(×年2回)

物件価格

4,580万円
※返済金額はあくまでも目安です。

こちらの物件は複数区画の分譲地・他にも販売中のマンションがあります。

鎌倉市大船4丁目
4580万円

電話をかける(携帯・PHS可)
045-489-5600
「ホームページを見た」とお伝え下さい。

お問い合わせ番号をお伝えください
RHS-980932080

内見予約
お問合せ

お問い合わせ

  1. 1
    内容入力
  2. 2
    内容確認
  3. 3
    完了
お問合せ内容必須
【備考欄】
詳細な見学ご希望時間、ご質問、ご希望条件などがございましたらお聞かせ下さい。
(2000文字以内)
お名前必須
メールアドレス必須
※ご記入いただいたメールアドレス宛てに、お問合せ内容の確認メールをお送りいたします。
※Yahoo!メールなどのフリーメールをご利用の場合、迷惑メールフォルダに入る場合があります。
 迷惑メールのフォルダ・設定等をご確認下さい。
電話番号必須
FAX(任意)
※ご入力いただいたお客さまの個人情報は、「個人情報の取扱いについて」に基づき適正に取り扱います。必ずお読みになり、同意の上お問い合わせください。

お気軽にお問い合わせください

045-489-5600
物件番号 RHS-980932080
※「ホームページを見た」
とお伝え下さい。