三浦市南下浦町上宮田第5期 新築戸建 全6棟 神奈川県三浦市南下浦町上宮田 |3,380万円の新築一戸建て|エムイーPLUS横浜
| 価格 | 3,380万円値下がり ![]() |
||||
|---|---|---|---|---|---|
| 所在地 | 神奈川県三浦市南下浦町上宮田
この地域周辺の物件を見る |
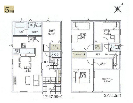
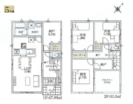
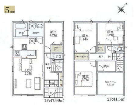
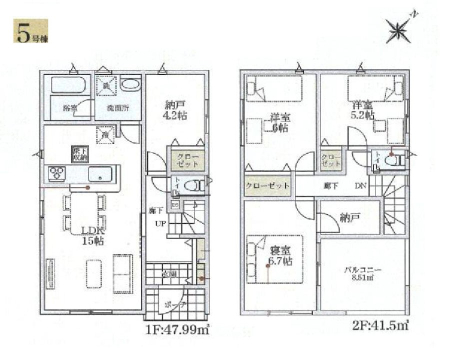
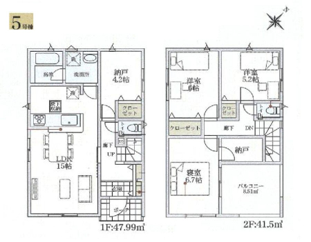
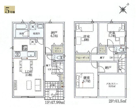
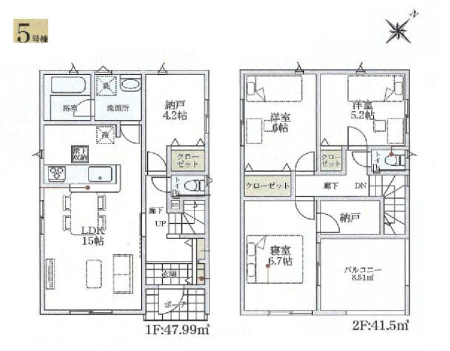
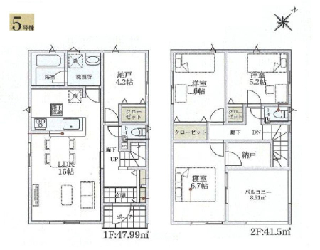
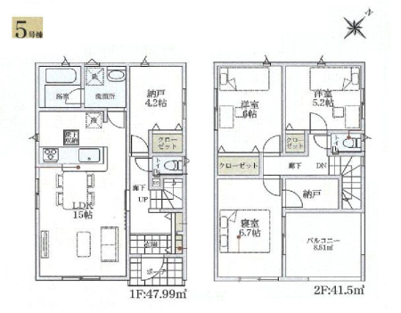
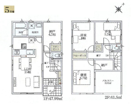
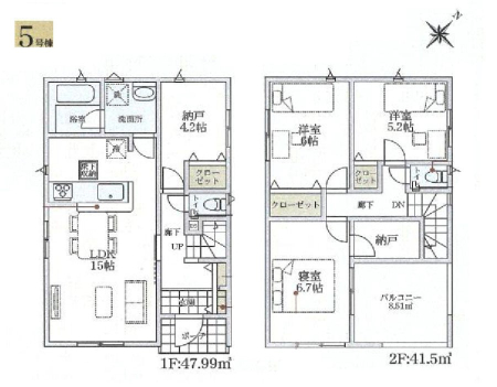
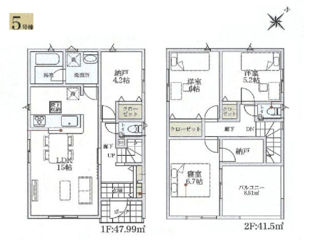
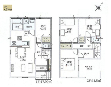
土地面積 | 128.21m² (38.78坪) | 建物面積 | 89.49u |
| 築年月 | 2026年3月築 | 間取り | 3SLDK (-) | ||
| 交通 |
京急久里浜線 三浦海岸 徒歩13分
京急久里浜線 津久井浜 徒歩14分 |
||||
| 特徴 |
|
|---|---|
| セールスコメント | |
| 採光面 | - | 構造/階数 | 木造/地上2階建 |
|---|---|---|---|
| 建ぺい率 | 60(%) | 容積率 | 160(%) |
| 駐車場 | 有 | 現況/引渡し | 空家/即時 |
| 土地権利 | 所有権 | 私道負担面積 | - |
| 接道状況 | 接道: 東南 公道 道路幅: 3.5m | 用途地域 |
第一種住居地域
|
| セットバック | あり | 法令上の制限 | 建築法22条指定区域 別途ルーフバルコニー8.51平米有 |
| 地目 | 宅地 | 地勢 | |
| 建築確認番号 | R07SHC120057号 | 都市計画 | 市街化区域 |
| 取引態様 | 仲介 | ||
| 情報更新日 | 2026年04月23日 | 次回更新日 | 2026年05月07日 |
| 小学校区 | () |
中学校区 | () |
|---|
| 価格 | 万円 | ||
|---|---|---|---|
| 年利率 | % |
||
| ボーナス払い | 返済年数 | ||
| 頭金 | 直接入力する | 万円 | |

毎月のご返済額 |
ボーナス(×年2回) |
物件価格3,380万円 |
![]() |
![]() |
三浦市南下浦町上宮田
3080万円〜3380万円 |
-