立川市一番町1丁目11期 新築戸建 全1棟 東京都立川市一番町1丁目|3,680万円の新築一戸建て|エムイーPLUS横浜

エムイーPLUS横浜

045-489-5600

営業時間:9:00~ 定休日:毎週水曜

TOPページ >
物件検索 >
新築一戸建て
>
立川市
>
西武拝島線
>
立川市一番町1丁目11期 新築戸建 全1棟

新築一戸建て

立川市一番町1丁目11期 新築戸建 全1棟

お気に入り
価格 3,680万円 ローンシミュレーション
所在地 東京都立川市一番町1丁目
この地域周辺の物件を見る
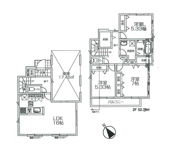
土地面積 98.3m² (29.74坪) 建物面積 105.19u
築年月 2026年5月築 間取り 3LDK (-)
交通
西武拝島線 武蔵砂川 徒歩20分
西武拝島線 西武立川 徒歩24分
ここがおすすめ

-


  • 現地外観写真 外観■暮らしを豊かにする充実した仕様設備で快適に
  •  間取り
  • 現地外観写真 外観■新しい暮らしが始まる場所で、家族の絆を深める
  • 現地外観写真 外観■新しい住まい、街の新しい風景
  • 現地外観写真 外観■家族みんなが笑顔で過ごせる、安心感のある住まい
  • 玄関 外観■ 帰るたびにホッとする、安心感のある佇まい
  • 玄関 外観■ シンプルで美しく、住まいの第一印象を彩る玄関です
  • その他 外観■暮らしに潤いを与える、緑が取り入れられた住まいです
  •  区画図
  • 玄関 内装■ ここから始まる一日、すっきり整った玄関
  • トイレ 内装■毎日使う場所だからこそ、清潔感溢れる空間
  • 洗面台・洗面所 内装■朝の準備がスムーズにできる広さです
  • 浴室 内装■家族みんなが気持ちよく使える設計です
  • キッチン 内装■シンプルで機能的、毎日使いやすいキッチン
  • キッチン 内装■キレイに片付く、使いやすいキッチン
  • キッチン 内装■家族の絆を深める、温もりのあるキッチン
  • リビング 内装■心落ち着く場所、ゆったり過ごせるリビング
  • リビング 内装■シンプルだけど贅沢、大切な人と過ごす心がほどける空間
  • その他内観 内装■ふとした瞬間に幸せを感じる、心地よい場所
  • リビング 内装■光と風を感じる、リラックスできる空間
  • その他内観 内装■優雅で穏やかな時間が流れる空間
  • 子供部屋 内装■仕事や勉強のスペースに使うことで、集中しやすく静かな環境が整います
  • 寝室 内装■快適な環境で、日常の疲れを癒せる空間
  • その他内観 内装■落ち着いた色合いのお部屋で穏やかな時間を楽しめます
  • バルコニー 内装■ 季節の移ろいを感じられる開放的な空間です
  • その他内観 内装■機能的で使いやすいお部屋で毎日を快適に
  • その他内観 内装■落ち着いた雰囲気のお部屋で心が安らぐ空間
  • 収納 内装■収納スペースあり!ぜひ現地でご覧ください
  • その他 内装■収納物の大きさに合わせて変えられる可動棚だと便利ですね
  • その他内観 設備■冬でも温かく、快適乾燥機能で湿気対策もバッチリ

お問い合わせ、資料請求、見学のお申し込みはこちらから

電話をかける(携帯・PHS可)
045-489-5600
「ホームページを見た」とお伝え下さい。

お問い合わせ番号をお伝えください
RHS-980931021

内見予約
お問合せ

セールスポイント

特徴
  • 給湯器
  • システムキッチン
  • シャワートイレ
  • 浴室乾燥機
  • TVドアホン
  • 宅配ボックス
セールスコメント  


物件概要

採光面 - 構造/階数 木造/地上2階建
建ぺい率 60(%) 容積率 200(%)
駐車場 現況/引渡し -/2026年5月下旬
土地権利 所有権 私道負担面積 -

接道状況 接道: 東 私道 道路幅: 4m 用途地域
準工業地域
セットバック なし 法令上の制限 第2種高度地区 準防火地域 景観法 盛土規制法
地目 宅地 地勢
建築確認番号 第SJK-KX255625460号 都市計画 市街化区域
取引態様 仲介
情報更新日 2026年04月23日 次回更新日 2026年05月07日
※各種情報と差異がある場合は現況優先となります

学区情報

小学校区 立川市立大山小学校
(東京都立川市)
この学区の他の物件を見る
中学校区 立川第五中学校
(東京都立川市)
この学区の他の物件を見る
※物件情報の学区情報について
当サイト物件情報に記載されております通学区域(学区)情報は、国土数値情報ダウンロードサービスが提供する小学校区データ【2021年度】及び中学校区データ【2021年度】を元に加工したものですので、記載情報が現在の学区域と異なる場合がございます。
国土数値情報ダウンロードサービスのWEBサイト上で記述通り、データは必ずしも正確とは言えません。また、通学区域(学区)は毎年見直しの対象となりますので、そちらを踏まえ学区情報は参考としてご活用下さい。

お問い合わせ、資料請求、見学のお申し込みはこちらから

電話をかける(携帯・PHS可)
045-489-5600
「ホームページを見た」とお伝え下さい。

お問い合わせ番号をお伝えください
RHS-980931021

内見予約
お問合せ

この物件でローンシミュレーションする

価格 万円
年利率
ボーナス払い 返済年数
頭金 直接入力する 万円

毎月のご返済額

ボーナス(×年2回)

物件価格

3,680万円
※返済金額はあくまでも目安です。
  • こちらの物件を見たお客様はこんな物件もチェックしています。
  • お気に入り物件

電話をかける(携帯・PHS可)
045-489-5600
「ホームページを見た」とお伝え下さい。

お問い合わせ番号をお伝えください
RHS-980931021

内見予約
お問合せ

お問い合わせ

  1. 1
    内容入力
  2. 2
    内容確認
  3. 3
    完了
お問合せ内容必須
【備考欄】
詳細な見学ご希望時間、ご質問、ご希望条件などがございましたらお聞かせ下さい。
(2000文字以内)
お名前必須
メールアドレス必須
※ご記入いただいたメールアドレス宛てに、お問合せ内容の確認メールをお送りいたします。
※Yahoo!メールなどのフリーメールをご利用の場合、迷惑メールフォルダに入る場合があります。
 迷惑メールのフォルダ・設定等をご確認下さい。
電話番号必須
FAX(任意)
※ご入力いただいたお客さまの個人情報は、「個人情報の取扱いについて」に基づき適正に取り扱います。必ずお読みになり、同意の上お問い合わせください。

お気軽にお問い合わせください

045-489-5600
物件番号 RHS-980931021
※「ホームページを見た」
とお伝え下さい。