横浜市泉区白百合1丁目 新築戸建 全1棟 神奈川県横浜市泉区白百合1丁目|5,230万円の新築一戸建て|エムイーPLUS横浜

エムイーPLUS横浜

045-489-5600

営業時間:9:00~ 定休日:毎週水曜

TOPページ >
物件検索 >
新築一戸建て
>
横浜市泉区
>
横浜市泉区白百合1丁目 新築戸建 全1棟

新築一戸建て

横浜市泉区白百合1丁目 新築戸建 全1棟

お気に入り
価格 5,230万円値下がり ローンシミュレーション
所在地 神奈川県横浜市泉区白百合1丁目
この地域周辺の物件を見る
土地面積 105.99m² (32.06坪) 建物面積 96.46u
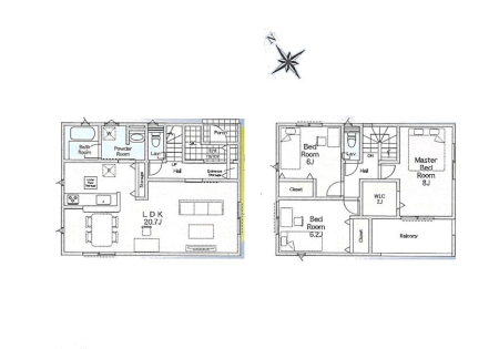
築年月 2026年2月築 間取り 4LDK (-)
交通
- - -
ここがおすすめ

-


  • 現地外観写真 充実の設備と豊富な収納で便利な生活!
  •  間取り
  • 現地外観写真 暮らしを彩る充実した設備仕様が備わった新築戸建
  • 現地外観写真 前面道路広々
  • 現地外観写真 周辺環境も合わせてご覧ください!
  • 現地外観写真 落ち着いたお洒落な外観
  •  我が家専用のカースペース!
  • 玄関 玄関はお家の顔!玄関アプローチでお客様をお迎え!
  •  区画図
  • 玄関 広々、綺麗な玄関でお客様をお出迎え!
  • トイレ 明るく清潔感溢れるトイレ
  • 洗面台・洗面所 お洒落で清潔感のある洗面所です!
  • 浴室 落ち着いた色合いの壁面、ゆっくり、ゆったり寛げるバスルーム。
  • キッチン 明るさと開放感たっぷりなキッチン!
  • キッチン 小窓があるので、明るさと開放感たっぷりなキッチン!
  • キッチン 収納力豊富なシステムキッチンです!
  • リビング いつの間にか家族が集まっちゃうそんなリビングいいですよね
  • リビング 大きな窓から光が入り明るい空間でお寛ぎいただけます
  • その他内観 直接陽が室内に差し込み大変明るい室内です
  • リビング リビングイン階段は、家族の会話、一体感を感じられる空間です。
  • その他内観 広いクローゼット、収納は多い方が嬉しいですね!
  • 子供部屋 豊富な収納スペース!
  • 寝室 大きな窓は開放感があり、明るさ通風バッチリです
  • その他内観 2面採光で明るい居室!
  • バルコニー お洗濯物がよく乾く陽当たり良好のバルコニーです!
  • その他内観 設備■環境に優しくエコなEV車ライフをサポート
  • その他内観 設備■調理時の蒸気や匂いが換気扇に誘導され、効率的に排煙ができます。
  • その他内観 設備■一度に多くの料理ができ便利で効率的
  • その他内観 設備■清潔でおいしい水を手軽に供給してくれます
  • その他内観 設備■時間短縮でき家事が楽になる便利な必需品

お問い合わせ、資料請求、見学のお申し込みはこちらから

電話をかける(携帯・PHS可)
045-489-5600
「ホームページを見た」とお伝え下さい。

お問い合わせ番号をお伝えください
RHS-980928902

内見予約
お問合せ

セールスポイント

特徴
  • フローリング
  • 床暖房
  • システムキッチン
  • バス・トイレ別
  • バルコニー
  • 都市ガス
  • プライスダウン
セールスコメント  


物件概要

採光面 - 構造/階数 木造/地上2階建
建ぺい率 50(%) 容積率 100(%)
駐車場 現況/引渡し 空家/即時
土地権利 所有権 私道負担面積 -

接道状況 接道: 西 公道 道路幅: 4m 用途地域
第一種低層住居専用地域
セットバック なし 法令上の制限 準防火地域 第一種高度地区 緑化地域 敷地面積100平米以上 道路、北側斜線制限・日影規制
地目 宅地 地勢
建築確認番号 第25UDI1K建00267号 都市計画 市街化区域
取引態様 仲介
情報更新日 2026年05月04日 次回更新日 2026年05月18日
※各種情報と差異がある場合は現況優先となります

学区情報

小学校区 横浜市立鳥が丘小学校
(神奈川県横浜市)
この学区の他の物件を見る
中学校区 領家中学校
(神奈川県横浜市)
この学区の他の物件を見る
※物件情報の学区情報について
当サイト物件情報に記載されております通学区域(学区)情報は、国土数値情報ダウンロードサービスが提供する小学校区データ【2021年度】及び中学校区データ【2021年度】を元に加工したものですので、記載情報が現在の学区域と異なる場合がございます。
国土数値情報ダウンロードサービスのWEBサイト上で記述通り、データは必ずしも正確とは言えません。また、通学区域(学区)は毎年見直しの対象となりますので、そちらを踏まえ学区情報は参考としてご活用下さい。

お問い合わせ、資料請求、見学のお申し込みはこちらから

電話をかける(携帯・PHS可)
045-489-5600
「ホームページを見た」とお伝え下さい。

お問い合わせ番号をお伝えください
RHS-980928902

内見予約
お問合せ

この物件でローンシミュレーションする

価格 万円
年利率
ボーナス払い 返済年数
頭金 直接入力する 万円

毎月のご返済額

ボーナス(×年2回)

物件価格

5,230万円
※返済金額はあくまでも目安です。

電話をかける(携帯・PHS可)
045-489-5600
「ホームページを見た」とお伝え下さい。

お問い合わせ番号をお伝えください
RHS-980928902

内見予約
お問合せ

お問い合わせ

  1. 1
    内容入力
  2. 2
    内容確認
  3. 3
    完了
お問合せ内容必須
【備考欄】
詳細な見学ご希望時間、ご質問、ご希望条件などがございましたらお聞かせ下さい。
(2000文字以内)
お名前必須
メールアドレス必須
※ご記入いただいたメールアドレス宛てに、お問合せ内容の確認メールをお送りいたします。
※Yahoo!メールなどのフリーメールをご利用の場合、迷惑メールフォルダに入る場合があります。
 迷惑メールのフォルダ・設定等をご確認下さい。
電話番号必須
FAX(任意)
※ご入力いただいたお客さまの個人情報は、「個人情報の取扱いについて」に基づき適正に取り扱います。必ずお読みになり、同意の上お問い合わせください。

お気軽にお問い合わせください

045-489-5600
物件番号 RHS-980928902
※「ホームページを見た」
とお伝え下さい。