あきる野市五日市第10 新築戸建 全4棟 東京都あきる野市五日市 |2,880万円の新築一戸建て|エムイーPLUS横浜
| 価格 | 2,880万円値下がり ![]() |
||||
|---|---|---|---|---|---|
| 所在地 | 東京都あきる野市五日市
この地域周辺の物件を見る |
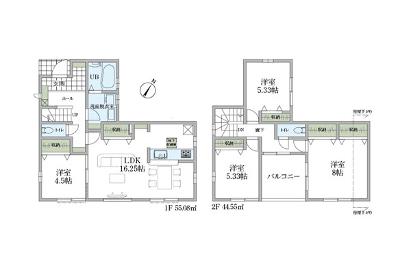
土地面積 | 140.5m² (42.5坪) | 建物面積 | 99.63u |
| 築年月 | 2026年2月築 | 間取り | 4LDK (-) | ||
| 交通 |
JR五日市線 武蔵五日市 徒歩15分
JR五日市線 武蔵増戸 バス15分 五日市出張所 停歩3分 |
||||
| 特徴 |
|
|---|---|
| セールスコメント | |
| 採光面 | - | 構造/階数 | 木造/地上2階建 |
|---|---|---|---|
| 建ぺい率 | 50(%) | 容積率 | 80(%) |
| 駐車場 | 有 | 現況/引渡し | 空家/即時 |
| 土地権利 | 所有権 | 私道負担面積 | - |
| 接道状況 | 接道: 北 公道 道路幅: 4m | 用途地域 |
第一種低層住居専用地域
|
| セットバック | なし | 法令上の制限 | 地目:一部公衆用道路 宅地造成等工事規制区域 航空法 第1種高度地区 法第22条区域 日影規制3h-2h/1.5m 高さ10m 土砂災害警戒区域 建ぺい率:角地緩和 |
| 地目 | 宅地 | 地勢 | |
| 建築確認番号 | 第25UDI1W建06052号 | 都市計画 | - |
| 取引態様 | 仲介 | ||
| 情報更新日 | 2026年04月23日 | 次回更新日 | 2026年05月07日 |
| 小学校区 | あきる野市立五日市小学校 (東京都あきる野市) この学区の他の物件を見る |
中学校区 | 五日市中学校 (東京都あきる野市) この学区の他の物件を見る |
|---|
| 価格 | 万円 | ||
|---|---|---|---|
| 年利率 | % |
||
| ボーナス払い | 返済年数 | ||
| 頭金 | 直接入力する | 万円 | |

毎月のご返済額 |
ボーナス(×年2回) |
物件価格2,880万円 |
![]() |
![]() |
あきる野市五日市
2880万円〜3280万円 |
-