相模原市南区相武台3丁目第23 新築戸建 全2棟 神奈川県相模原市南区相武台3丁目|3,380万円の新築一戸建て|エムイーPLUS横浜

エムイーPLUS横浜

045-489-5600

営業時間:9:00~ 定休日:毎週水曜

TOPページ >
物件検索 >
新築一戸建て
>
相模原市南区
>
小田急小田原線
>
相模原市南区相武台3丁目第23 新築戸建 全2棟

新築一戸建て

相模原市南区相武台3丁目第23 新築戸建 全2棟

お気に入り
価格 3,380万円値下がり ローンシミュレーション
所在地 神奈川県相模原市南区相武台3丁目
この地域周辺の物件を見る
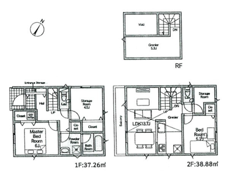
土地面積 72.12m² (21.82坪) 建物面積 76.14u
築年月 2026年3月築 間取り 2SLDK (-)
交通
小田急小田原線 相武台前 徒歩16分
小田急小田原線 小田急相模原 徒歩20分
ここがおすすめ

-


  • 現地外観写真 2号棟  ■暮らしを豊かにする充実した仕様設備で快適に
  •  2号棟
  • 現地外観写真 2号棟  ■新しい暮らしが始まる場所で、家族の絆を深める
  • 現地外観写真 外観■新しい住まい、街の新しい風景
  • 現地外観写真 2号棟  ■暮らしを豊かにする充実した仕様設備で快適に
  • 現地外観写真 2号棟  ■新しい暮らしが始まる場所で、家族の絆を深める
  •  2号棟  ■カースペース有
  • 玄関 2号棟  ■ 帰るたびにホッとする、安心感のある佇まい
  •  区画図
  • 玄関 2号棟  ■広々、綺麗な玄関でお客様をお出迎え!
  • トイレ 2号棟  ■窓付きで明るく清潔なトイレ
  • 洗面台・洗面所 2号棟  ■広々とゆとりのある洗面所
  • 浴室 2号棟  ■家族みんなが気持ちよく使える設計です
  • キッチン 2号棟  ■家族の絆を深める、温もりのあるキッチン
  • キッチン 2号棟  ■料理がもっと楽しくなる、快適なキッチン空間
  • キッチン 2号棟  ■使いやすさとデザインが融合した、快適なキッチン
  • リビング 2号棟  ■くつろぎもおもてなしも叶える柔軟なリビング※家具はCGです
  • リビング 2号棟  ■ここにいる時間が一番長いから やっぱりリビングは明るい方がいいですよね
  • その他内観 2号棟  ■家族の笑顔があふれる、くつろぎの空間
  • リビング 2号棟  ■2階リビングは陽当たり良好!家族のプライベートが守られる空間です  (2号棟)
  • その他内観 2号棟  ■優雅で穏やかな時間が流れる空間
  • 子供部屋 2号棟  ■家具やレイアウトを自由に配置できるため使い勝手が良く快適に過ごせます
  • 寝室 2号棟  ■豊富な収納スペース!
  • その他内観 2号棟  ■機能的で使いやすいお部屋で毎日を快適に
  • バルコニー 2号棟  ■ 自然を身近に感じる、開放的なバルコニー
  • 収納 2号棟  ■グルニエがあるので年に数回しか使わない物も置き場所に困りません
  • その他内観 設備■温水洗浄で快適、清潔感が保たれるシャワートイレ
  • その他内観 設備■手洗いや顔を洗う時も快適に使える便利なシャワー
  • その他内観 設備■冬でも温かく、快適乾燥機能で湿気対策もバッチリ
  • その他内観 設備■一度に多くの料理ができ便利で効率的

お問い合わせ、資料請求、見学のお申し込みはこちらから

電話をかける(携帯・PHS可)
045-489-5600
「ホームページを見た」とお伝え下さい。

お問い合わせ番号をお伝えください
RHS-980928182

内見予約
お問合せ

セールスポイント

特徴
  • システムキッチン
  • カウンターキッチン
  • シャンプードレッサー
  • シャワートイレ
  • 浴室乾燥機
  • 床下収納
  • バルコニー
  • TVドアホン
  • 都市ガス
  • プライスダウン
セールスコメント  


物件概要

採光面 - 構造/階数 木造/地上2階建
建ぺい率 60(%) 容積率 200(%)
駐車場 現況/引渡し 空家/即時
土地権利 所有権 私道負担面積 -

接道状況 接道: 西 公道 道路幅: 4m 用途地域
第一種中高層住居専用地域
セットバック なし 法令上の制限 準防火区域
地目 宅地 地勢
建築確認番号 第KBI−SGM25−10−3091号 都市計画 -
取引態様 仲介
情報更新日 2026年05月19日 次回更新日 2026年06月02日
※各種情報と差異がある場合は現況優先となります

学区情報

小学校区
()
中学校区
()
※物件情報の学区情報について
当サイト物件情報に記載されております通学区域(学区)情報は、国土数値情報ダウンロードサービスが提供する小学校区データ【2021年度】及び中学校区データ【2021年度】を元に加工したものですので、記載情報が現在の学区域と異なる場合がございます。
国土数値情報ダウンロードサービスのWEBサイト上で記述通り、データは必ずしも正確とは言えません。また、通学区域(学区)は毎年見直しの対象となりますので、そちらを踏まえ学区情報は参考としてご活用下さい。

お問い合わせ、資料請求、見学のお申し込みはこちらから

電話をかける(携帯・PHS可)
045-489-5600
「ホームページを見た」とお伝え下さい。

お問い合わせ番号をお伝えください
RHS-980928182

内見予約
お問合せ

この物件でローンシミュレーションする

価格 万円
年利率
ボーナス払い 返済年数
頭金 直接入力する 万円

毎月のご返済額

ボーナス(×年2回)

物件価格

3,380万円
※返済金額はあくまでも目安です。
  • こちらの物件を見たお客様はこんな物件もチェックしています。
  • お気に入り物件

電話をかける(携帯・PHS可)
045-489-5600
「ホームページを見た」とお伝え下さい。

お問い合わせ番号をお伝えください
RHS-980928182

内見予約
お問合せ

お問い合わせ

  1. 1
    内容入力
  2. 2
    内容確認
  3. 3
    完了
お問合せ内容必須
【備考欄】
詳細な見学ご希望時間、ご質問、ご希望条件などがございましたらお聞かせ下さい。
(2000文字以内)
お名前必須
メールアドレス必須
※ご記入いただいたメールアドレス宛てに、お問合せ内容の確認メールをお送りいたします。
※Yahoo!メールなどのフリーメールをご利用の場合、迷惑メールフォルダに入る場合があります。
 迷惑メールのフォルダ・設定等をご確認下さい。
電話番号必須
FAX(任意)
※ご入力いただいたお客さまの個人情報は、「個人情報の取扱いについて」に基づき適正に取り扱います。必ずお読みになり、同意の上お問い合わせください。

お気軽にお問い合わせください

045-489-5600
物件番号 RHS-980928182
※「ホームページを見た」
とお伝え下さい。