大和市桜森2丁目4期 新築戸建 全14棟 神奈川県大和市桜森2丁目|4,580万円の新築一戸建て|エムイーPLUS横浜
| 価格 | 4,580万円 ![]() |
||||
|---|---|---|---|---|---|
| 所在地 | 神奈川県大和市桜森2丁目
この地域周辺の物件を見る |
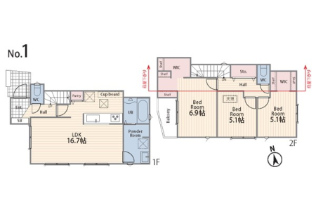
土地面積 | 100.01m² (30.25坪) | 建物面積 | 100.19u |
| 築年月 | 2025年9月築 | 間取り | 4LDK (-) | ||
| 交通 |
相鉄本線 相模大塚 徒歩5分
相鉄本線 さがみ野 徒歩15分 |
||||
| 特徴 |
|
|---|---|
| セールスコメント | 開発道路(214.22m2)、SB部分(43.31m2)は市所有です |
| 採光面 | - | 構造/階数 | 木造/地上2階建 |
|---|---|---|---|
| 建ぺい率 | 60(%) | 容積率 | 200(%) |
| 駐車場 | 有 | 現況/引渡し | 空家/即時 |
| 土地権利 | 所有権 | 私道負担面積 | - |
| 接道状況 | 接道: 北 公道 道路幅: 4.5m | 用途地域 |
第一種住居地域
|
| セットバック | あり | 法令上の制限 | - |
| 地目 | 宅地 | 地勢 | |
| 建築確認番号 | 第24UDI1K建01502号 | 都市計画 | 市街化区域 |
| 取引態様 | 仲介 | ||
| 情報更新日 | 2026年04月28日 | 次回更新日 | 2026年05月12日 |
| 小学校区 | 大和市立文ケ岡小学校 (神奈川県大和市) この学区の他の物件を見る |
中学校区 | 光丘中学校 (神奈川県大和市) この学区の他の物件を見る |
|---|
| 価格 | 万円 | ||
|---|---|---|---|
| 年利率 | % |
||
| ボーナス払い | 返済年数 | ||
| 頭金 | 直接入力する | 万円 | |

毎月のご返済額 |
ボーナス(×年2回) |
物件価格4,580万円 |
-