逗子市桜山5丁目 新築戸建 全3棟 神奈川県逗子市桜山5丁目|5,280万円の新築一戸建て|エムイーPLUS横浜

エムイーPLUS横浜

045-489-5600

営業時間:9:00~ 定休日:毎週水曜

TOPページ >
物件検索 >
新築一戸建て
>
逗子市
>
JR横須賀線
>
逗子市桜山5丁目 新築戸建 全3棟

新築一戸建て

逗子市桜山5丁目 新築戸建 全3棟

お気に入り
価格 5,280万円値下がり ローンシミュレーション
所在地 神奈川県逗子市桜山5丁目
この地域周辺の物件を見る
土地面積 95.71m² (28.95坪) 建物面積 109.7u
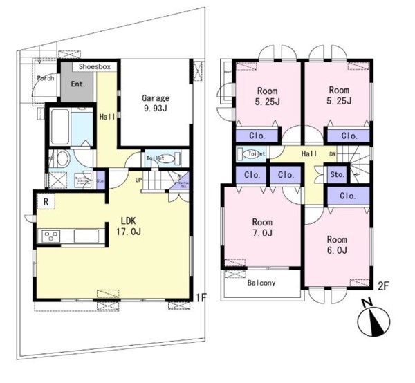
築年月 2025年12月築 間取り 4LDK (-)
交通
JR横須賀線 東逗子 徒歩5分
京急逗子線 神武寺 徒歩20分
ここがおすすめ

-


  • 現地外観写真 外観■新しい暮らしが始まる場所で、家族の絆を深める
  •  間取り
  • 現地外観写真 外観■まずは一度ご覧ください
  • 現地外観写真 外観■優雅なラインが、毎日を引き立てます
  • 現地外観写真 外観■暮らしを豊かにする充実した仕様設備で快適に
  •  外観■自宅にある駐車スペースなので安心ですね
  •  区画図
  • 玄関 内装■ 毎日を気持ちよく迎える、明るく温もりのある玄関
  • トイレ 内装■使いやすさと清潔感にこだわった空間
  • 洗面台・洗面所 内装■家族みんなが使いやすい配置です
  • 浴室 内装■ゆっくり、ゆったり寛げるバスルーム
  • キッチン 内装■料理がもっと楽しくなる、快適なキッチン空間
  • キッチン 内装■家族とつながる、コミュニケーションの場
  • キッチン 内装■美味しい時間が生まれる、笑顔あふれるキッチン
  • リビング 内装■家族の時間を彩る、快適で癒される空間
  • リビング 内装■大切な人と過ごす、あたたかいひととき
  • その他内観 内装■温もりを感じる、居心地のいいリビング
  • リビング 内装■心落ち着く場所、ゆったり過ごせるリビング
  • その他内観 内装■心地よい雰囲気が漂う落ち着いた空間
  • 子供部屋 内装■家具やレイアウトを自由に配置できるため使い勝手が良く快適に過ごせます
  • 寝室 内装■家具をうまく配置すれば広々とした空間を使い動きやすく、リラックスした時間が過ごせます
  • その他内観 内装■落ち着いた雰囲気のお部屋で心が安らぐ空間
  • バルコニー 内装■ 自然を身近に感じる、開放的なバルコニー
  • その他内観 設備■便座の温かさと洗浄機能で快適に
  • その他内観 設備■細かい部分まで洗いやすく便利なハンドシャワー付き
  • その他内観 設備■浴室をすぐに暖かく湿気も取り除けて便利
  • その他内観 設備■わざわざシャワー水栓のレバーまで手を伸ばす必要がなく、簡単に止水できる
  • その他内観 設備■複数の鍋が同時に使えますね
  • その他内観 設備■フードに覆われている為、匂いが換気扇に誘導され、効率的に排煙ができます
  • その他内観 設備■手間なく洗浄!食器をピカピカに仕上げてくれます

お問い合わせ、資料請求、見学のお申し込みはこちらから

電話をかける(携帯・PHS可)
045-489-5600
「ホームページを見た」とお伝え下さい。

お問い合わせ番号をお伝えください
RHS-980924707

内見予約
お問合せ

セールスポイント

特徴
  • フローリング
  • システムキッチン
  • バス・トイレ別
  • バルコニー
  • 都市ガス
  • プライスダウン
セールスコメント  


物件概要

採光面 - 構造/階数 木造/地上2階建
建ぺい率 60(%) 容積率 200(%)
駐車場 現況/引渡し 空家/即時
土地権利 所有権 私道負担面積 -

接道状況 接道: 北 私道 道路幅: 4m 用途地域
第一種中高層住居専用地域
セットバック あり 法令上の制限 -
地目 宅地 地勢
建築確認番号 第25KAK建確00158号 都市計画 市街化区域
取引態様 仲介
情報更新日 2026年04月21日 次回更新日 2026年05月05日
※各種情報と差異がある場合は現況優先となります

学区情報

小学校区 逗子市立沼間小学校
(神奈川県逗子市)
この学区の他の物件を見る
中学校区 沼間中学校
(神奈川県逗子市)
この学区の他の物件を見る
※物件情報の学区情報について
当サイト物件情報に記載されております通学区域(学区)情報は、国土数値情報ダウンロードサービスが提供する小学校区データ【2021年度】及び中学校区データ【2021年度】を元に加工したものですので、記載情報が現在の学区域と異なる場合がございます。
国土数値情報ダウンロードサービスのWEBサイト上で記述通り、データは必ずしも正確とは言えません。また、通学区域(学区)は毎年見直しの対象となりますので、そちらを踏まえ学区情報は参考としてご活用下さい。

お問い合わせ、資料請求、見学のお申し込みはこちらから

電話をかける(携帯・PHS可)
045-489-5600
「ホームページを見た」とお伝え下さい。

お問い合わせ番号をお伝えください
RHS-980924707

内見予約
お問合せ

この物件でローンシミュレーションする

価格 万円
年利率
ボーナス払い 返済年数
頭金 直接入力する 万円

毎月のご返済額

ボーナス(×年2回)

物件価格

5,280万円
※返済金額はあくまでも目安です。

こちらの物件は複数区画の分譲地・他にも販売中のマンションがあります。

逗子市桜山5丁目
5280万円〜5980万円
  • こちらの物件を見たお客様はこんな物件もチェックしています。
  • お気に入り物件

電話をかける(携帯・PHS可)
045-489-5600
「ホームページを見た」とお伝え下さい。

お問い合わせ番号をお伝えください
RHS-980924707

内見予約
お問合せ

お問い合わせ

  1. 1
    内容入力
  2. 2
    内容確認
  3. 3
    完了
お問合せ内容必須
【備考欄】
詳細な見学ご希望時間、ご質問、ご希望条件などがございましたらお聞かせ下さい。
(2000文字以内)
お名前必須
メールアドレス必須
※ご記入いただいたメールアドレス宛てに、お問合せ内容の確認メールをお送りいたします。
※Yahoo!メールなどのフリーメールをご利用の場合、迷惑メールフォルダに入る場合があります。
 迷惑メールのフォルダ・設定等をご確認下さい。
電話番号必須
FAX(任意)
※ご入力いただいたお客さまの個人情報は、「個人情報の取扱いについて」に基づき適正に取り扱います。必ずお読みになり、同意の上お問い合わせください。

お気軽にお問い合わせください

045-489-5600
物件番号 RHS-980924707
※「ホームページを見た」
とお伝え下さい。