平塚市菫平 新築未入居戸建 全8棟 神奈川県平塚市菫平 |5,790万円の中古一戸建て|エムイーPLUS横浜
| 価格 | 5,790万円 ![]() |
||||
|---|---|---|---|---|---|
| 所在地 | 神奈川県平塚市菫平
この地域周辺の物件を見る |
土地面積 | 113.04m² (34.19坪) | 建物面積 | 104.34u |
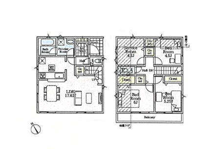
| 築年月 | 2024年3月築 | 間取り | 3LDK (-) | ||
| 交通 |
JR東海道本線 平塚 徒歩22分
JR東海道本線 大磯 徒歩38分 |
||||
| 特徴 |
|
|---|---|
| セールスコメント | 平塚市立花水小学校 600m 平塚市立浜岳中学校 600m |
| 採光面 | - | 構造/階数 | 木造/地上2階建 |
|---|---|---|---|
| 建ぺい率 | 60(%) | 容積率 | 200(%) |
| 駐車場 | 有 | 現況/引渡し | 空家/即時 |
| 土地権利 | 所有権 | 私道負担面積 | - |
| 接道状況 | 接道: 南 公道 道路幅: 5m | 用途地域 |
第一種中高層住居専用地域
|
| セットバック | なし | 法令上の制限 | ごみ集積所の共有持分有り イグニチャーソーラー10年間利用料:3300円/月 景観法 準防火地域 |
| 地目 | 宅地 | 地勢 | |
| 建築確認番号 | 都市計画 | 市街化区域 | |
| 取引態様 | 仲介 | ||
| 情報更新日 | 2026年04月24日 | 次回更新日 | 2026年05月08日 |
| 小学校区 | () |
中学校区 | () |
|---|
| 価格 | 万円 | ||
|---|---|---|---|
| 年利率 | % |
||
| ボーナス払い | 返済年数 | ||
| 頭金 | 直接入力する | 万円 | |

毎月のご返済額 |
ボーナス(×年2回) |
物件価格5,790万円 |
陽当たり良好 車種によりカースペース2台可 小中学校まで徒歩8分 各棟暮らしやすい間取り 全棟充実の注文住宅仕様 収納豊富