日野市南平9丁目の分譲住宅一覧|東京・神奈川の不動産のことならエムイーPLUS横浜
045-489-5600
営業時間:9:00~ 定休日:毎週水曜
来店予約
会員登録
マイページ
買いたい
物件検索
横浜市の物件特集
大和市の物件特集
売りたい
知りたい
ローンシミュレーション
提携サービス
ファイナンシャルプラン相談
特典・無料サービス
WEBパンフレット
不動産コラム
会社情報
会社概要
アドバイザー紹介
お客様に選ばれる理由
よくある質問
来店予約
お問い合わせ
TOPページ
>
物件検索
>
分譲住宅特集一覧
>
日野市南平9丁目の分譲住宅特集一覧
3
件中
1〜3
件を表示
1
check
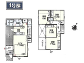
新築一戸建て|日野市南平9丁目分譲住宅
新築一戸建て
価格
5,290万円
所在地
日野市南平9丁目
交通
京王線 南平駅 徒歩6分
建物面積
95.43m
2
土地面積
133.04m
2
check
新築一戸建て|日野市南平9丁目分譲住宅
新築一戸建て
価格
5,290万円
所在地
日野市南平9丁目
交通
京王線 南平駅 徒歩6分
建物面積
99.36m
2
土地面積
133.04m
2
check
新築一戸建て|日野市南平9丁目分譲住宅
新築一戸建て
価格
5,490万円
所在地
日野市南平9丁目
交通
京王線 南平駅 徒歩6分
建物面積
98.12m
2
土地面積
133.06m
2
3
件中
1〜3
件を表示
1
マイページメニュー
【ただいまログイン中です】
マイページトップ
登録情報の編集
お気に入り物件一覧
最近見た物件
ログアウト
個人情報の取扱いについて
種別から検索
新築戸建て
中古戸建て
マンション
土地
価格から検索
2,000万円台
3,000万円台
4,000万円台
5,000万円台
こだわり条件から検索
更新したての新着物件
最新値下げ物件
3LDK以上ファミリー向け
駅から15分以内
カースペース2台以上
沿線検索
学区検索
おすすめコンテンツ
特典・無料サービス
売却査定
ローンシミュレーション
よくある質問
提携サービス
ファイナンシャルプラン相談
お客様に選ばれる理由
WEBパンフレット
不動産コラム
当社について
エムイーPLUS横浜
〒246-0022
神奈川県横浜市瀬谷区三ツ境
1-9ブルーヘンビル2階
TEL:045-489-5600
FAX: 045-489-5605
営業時間:9:00~18:30
定休日:水曜日
会社概要はこちら
アドバイザー紹介
物件検索
お気に入り
閲覧履歴
来店予約
検索履歴
ログイン
マイページ